EasyManua.ls Logo

LG ARWN072BA2 - Page 22

LG ARWN072BA2
229 pages
Print Icon
To Next Page IconTo Next Page
To Next Page IconTo Next Page
To Previous Page IconTo Previous Page
To Previous Page IconTo Previous Page
Loading...
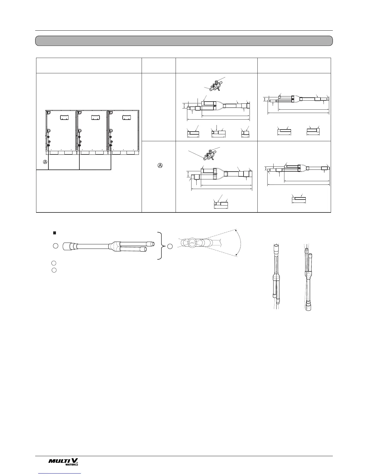
22 Outside Unit
Refrigerant piping installation
3 Outside Units
Y branch
A
B
To outside unit
To branch piping or indoor unit
A
B
Facing
upwards
Facing
downwards
Within 3 Within 3
Viewed from point A
in direction of arrow
Within +/- 10
Connecting
branch pipe
Combination specification Gas pipe Liquid pipe
ARCNN20
ARCNN30
Don't cut the pipe less than
70mm
Blow nitrogen while
brazing
I.D38.1(1-1/2)
I.D38.1(1-1/2)
I.D34.9(1-3/8)
Don't cut the pipe less than
70mm
Blow nitrogen while
brazing
[mm(inch)]
401(15-25/32)
331(13-1/32)
24
(31/32)
80(3-5/32)
73(2-7/8)
73(2-7/8)
O.D12.7(1/2)
I.D12.7(1/2)
I.D12.7(1/2)
I.D12.7(1/2)
I.D12.7(1/2)
I.D12.7(1/2)
I.D9.52(3/8)
O.D12.7(1/2)I.D9.52(3/8)
I.D9.52(3/8)
I.D15.88(5/8)
I.D15.88(5/8)
I.D19.05(3/4)
I.D19.05(3/4)
I.D19.05(3/4)
I.D22.2(7/8)
I.D22.2(7/8)
440(17-5/16)
370(14-9/16)
45
(25/32)
I.D
41.3(1-5/8)
397(15-5/8)
289(11-3/8)
24
(31/32)
473(18-5/8)
363(14-9/32)
38
(1-1/2)
I.D28.58(1-1/8)
O.D28.58(1-1/8)
I.D28.58(1-1/8)
I.D28.58(1-1/8)
I.D28.58(1-1/8)
I.D28.58(1-1/8)
I.D19.05(3/4)
I.D19.05(3/4)
I.D19.05(3/4)
I.D19.05(3/4)
I.D15.88(5/8)
I.D31.8(1-1/4)
I.D34.9(1-3/8)
O.D34.9(1-3/8)
I.D34.9(1-3/8)
75(2-15/16) 83(3-9/32)
115(4-17/32)
115(4-17/32)
I.D22.2(7/8)
O.D28.58(1-1/8)
I.D19.05(3/4)
I.D22.2(7/8)
I.D22.2(7/8)

Table of Contents