EasyManua.ls Logo

LG FLEX MULTI SPLIT - Installation

LG FLEX MULTI SPLIT
57 pages
Print Icon
To Next Page IconTo Next Page
To Next Page IconTo Next Page
To Previous Page IconTo Previous Page
To Previous Page IconTo Previous Page
Loading...
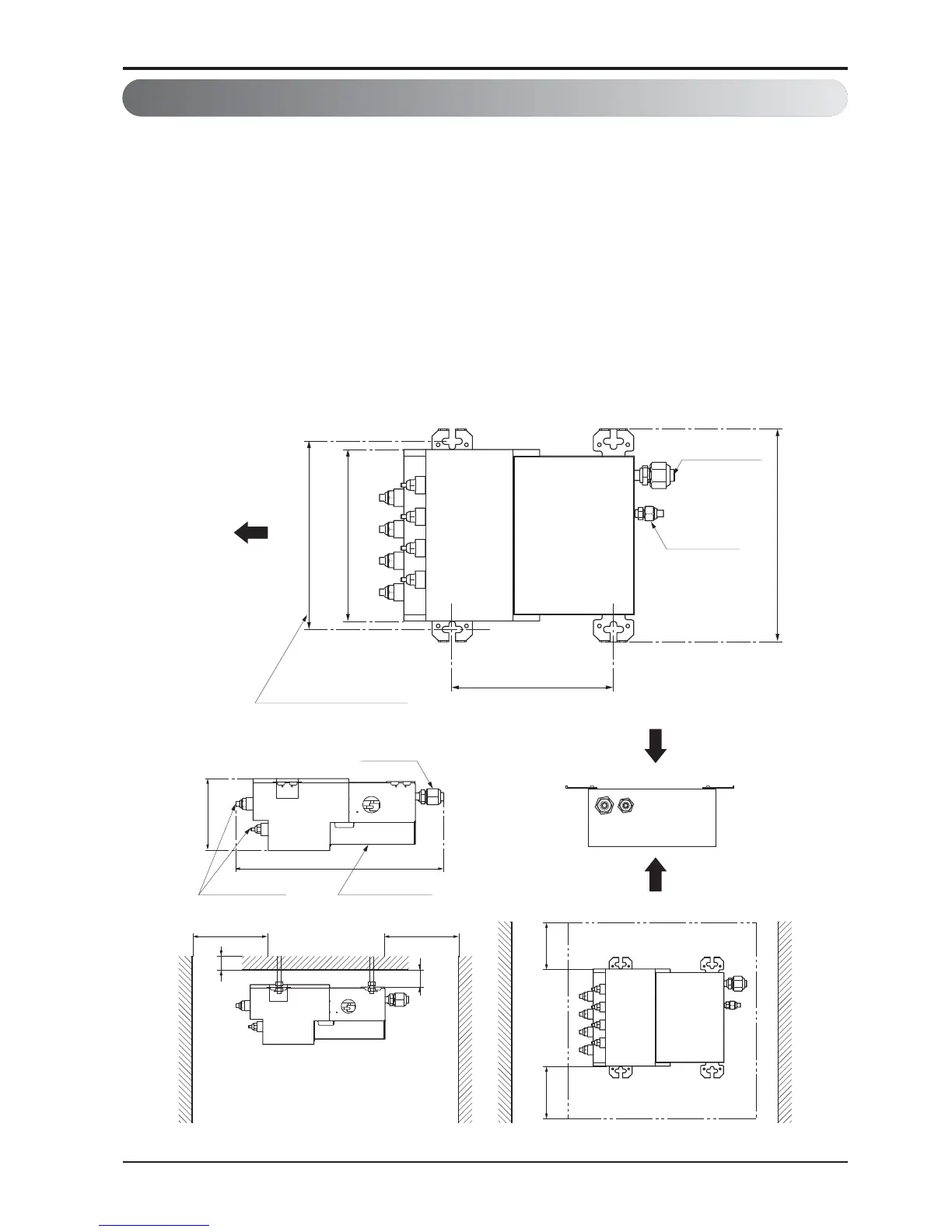
42 Multi Air Conditioner
Flaring Work and Connection of Piping
Installation
• This unit may be installed suspended from the ceiling or mounted on the wall.
• This unit may only be installed horizontally , as shown in the diagram below.(Side B is facing up)
However, it may be freely installed in any direction forward or back, and to the sides.
• Be sure to leave a 600mm square opening for service and inspection as shown in the diagram
below, for both ceiling - suspended installation and wall-mounted installation.
• This unit "does not require drain treatment" as it uses internal foam treatment as low-pressure
piping insulation.
• Service direction is the side B and C
• The piping for the indoor unit may be led around in direction A
• The inclination of side B must be within ±5 degrees forward or back or to the sides.
Min 400(15 3/4)
Min 30(1 3/16)
Min 100(3 15/16)
Min 400(15 3/4)
Branch Pipe
432(17)
160(6 5/16)
Cover Control
Main Pipe
(Servicing space)
B
C
Inspection opening
Min 300(11 13/16)
Min 300(11 13/16)
298(11 23/32)
250(9 27/32)
Ø19.05(3/4)
Ø9.52(3/8)
Suspension bolt pitch.
245(9 21/32)
337(13 9/32)
A
Unit : mm(inch)

Table of Contents

Other manuals for LG FLEX MULTI SPLIT

Related product manuals