EasyManua.ls Logo

LG MULTI V ARNU243NJA4 - Dimensions - MID and High-Static Ducted M2 Chassis

LG MULTI V ARNU243NJA4
94 pages
To Next Page IconTo Next Page
To Next Page IconTo Next Page
To Previous Page IconTo Previous Page
To Previous Page IconTo Previous Page
Loading...
27
Installation Manual
Due to our policy of continuous product innovation, some specifications may change without notification.
©LG Electronics U.S.A., Inc., Englewood Cliffs, NJ. All rights reserved. “LG” is a registered trademark of LG Corp.
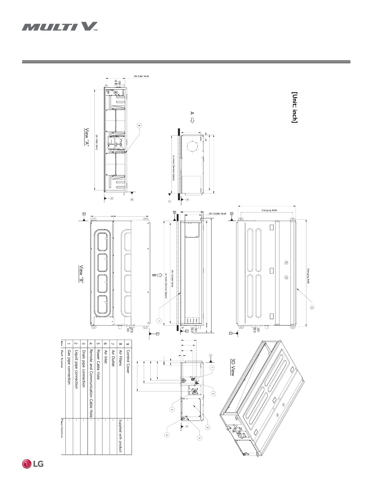
GENERAL DATA
Dimensions – Mid and High-Static Ducted M2 Chassis
7-7/32
6-19/32
5-15/32
7/8
27-1/4
24-3/8
7-7/8
10-11/16
9-5/16
9-3/32
10-11/16 16-9/16
50-17/32
27/32
2-1/32
8-21/32
9-1/4
10-13/32
14-9/32
54-7/32
49-9/32
47-15/32
49-3/16
47-1/2
3-9/16
27-9/16
26-5/32
1-25/32
27-1/16

Table of Contents

Related product manuals