EasyManua.ls Logo

LG MULTI V ARNU243NJA4 - General Mounting - V; H Air Handler Units

LG MULTI V ARNU243NJA4
94 pages
To Next Page IconTo Next Page
To Next Page IconTo Next Page
To Previous Page IconTo Previous Page
To Previous Page IconTo Previous Page
Loading...
44
Multi V Ducted Indoor Units
Due to our policy of continuous product innovation, some specifications may change without notification.
©LG Electronics U.S.A., Inc., Englewood Cliffs, NJ. All rights reserved. “LG” is a registered trademark of LG Corp.
General Mounting - Vertical / Horizontal Air Handler Units
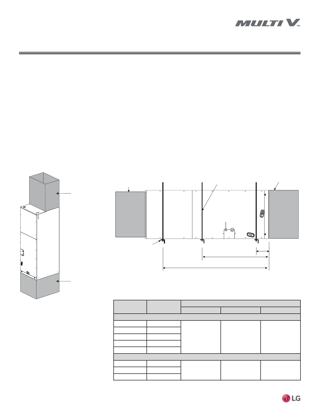
Vertical / horizontal air handler units can be installed either in an upflow or a horizontal-left position.
General Guidelines
Support platforms must be sturdy enough to support the air handler unit plus any accessories including lter boxes. The size of the
support must be bigger than the air handler unit; the unit itself must be placed at the center of the support.
Vibration isolators (eld-supplied) must be installed between the air handler unit and the support(s).
Secure the plenum to support adapters and duct work.
To prevent air leaks, seal all ducts following local codes.
Follow all relevant building codes in installations in which an external condensate pan may be necessary. Supports for air handler units must
be located in or above the external condensate pan.
Specific Guidelines for Horizontal-Left Installation
Units must not be installed where the access panels face up or down, nor where lter access is obstructed.
If the air handler unit is suspended, use angled steel brackets with threaded rods as support.
To ensure proper condensate drainage, the air handler unit must be installed so it is within 1/8″ level of its length and width.
Field-Supplied
Return Plenum
Field-Supplied
Supply Duct
Figure 26: Upow Installation.
Model No.
Capacity
(Btu/h)
Dimensions (inches)
A B C
NJ Frames
ARNU123NJA4 12,000
4 23 41-3/8
ARNU183NJA4 18,000
ARNU243NJA4 24,000
ARNU303NJA4 30,000
ARNU363NJA4 36,000
NK Frames
ARNU423NKA4 42,000
4 29 48ARNU483NKA4 48,000
ARNU543NKA4 54,000
B
A
C
More than 1-1/2
inch X 1-1/2 inch angle
Recommended
length more than 26
inch with 2 inch
clearance on both
sides of unit
More than 3/8 inch
threaded rod
Field-Supplied
Supply Duct
Field-Supplied
Return Plenum
Suspension Support Locations
Figure 27: Horizontal-Left Installation.
Table 20: Horizontal-Left Installation Dimensions.
GENERAL INSTALLATION GUIDELINES

Table of Contents

Related product manuals