EasyManua.ls Logo

LG Tri-Zone Multi F - Page 22

LG Tri-Zone Multi F
77 pages
To Next Page IconTo Next Page
To Next Page IconTo Next Page
To Previous Page IconTo Previous Page
To Previous Page IconTo Previous Page
Loading...
'XHWRRXUSROLF\RIFRQWLQXRXVSURGXFWLQQRYDWLRQVRPHVSHFL¿FDWLRQVPD\FKDQJHZLWKRXWQRWL¿FDWLRQ
©/*(OHFWURQLFV86$,QF(QJOHZRRG&OLIIV1-$OOULJKWVUHVHUYHG³/*´LVDUHJLVWHUHGWUDGHPDUNRI/*&RUS
22 | MULTI F OUTDOOR UNIT
Multi F and Multi F MAX Heat Pump System Engineering Manual
MULTI
F
MAX
MULTI
F
MULTI F OUTDOOR UNIT
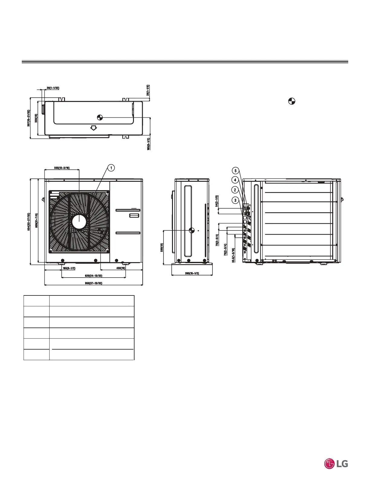
'LPHQVLRQV
Figure 8: LMU30CHV and LMU36CHV External Dimensions.
Vapor pipe connection
Part Name
Air discharge grille
Liquid pipe connection
Main service valve (Vapor)
Main service valve (Liquid)
5
No.
2
4
3
1
[Unit : mm(inch)]
Gravity point
1. Unit must be installed in compliance with the installation manual.
2. Unit must be grounded in accordance with the local or state
regulations and applicable national codes.
3. All field-supplied electrical components and materials must comply
with local, state, and national codes.
4. Electrical characteristics must be considered for electrical
work and design. The capacity of power cable and circuit
breaker for the outdoor unit must follow local, state, national,
and manufacturer requirements.
Notes:

Other manuals for LG Tri-Zone Multi F

Related product manuals