EasyManua.ls Logo

Liebert 30-130kVA - 3 Operation; Operator Controls; Figure 2 80 Kva UPS Outside and Inside Views; Table 1 Key Locations on UPS

Liebert 30-130kVA
112 pages
Print Icon
To Next Page IconTo Next Page
To Next Page IconTo Next Page
To Previous Page IconTo Previous Page
To Previous Page IconTo Previous Page
Loading...
Operation
14
3.0 OPERATION
3.1 Operator Controls
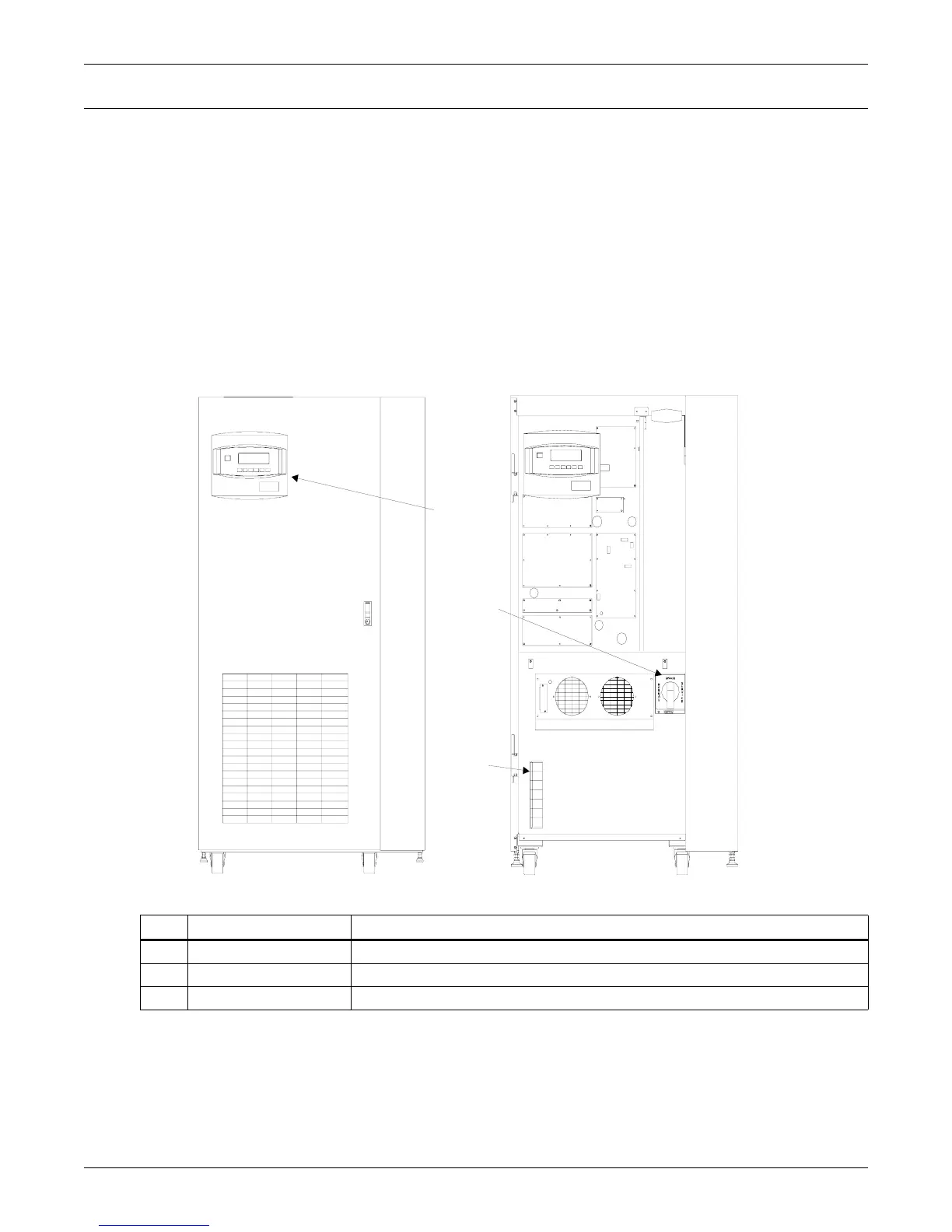
The Npower operator controls and indicators are located on the UPS Module Cabinet door and inside
the cabinet. See Figure 2. The Operator Control Panel is located in the upper lefthand corner of the
door, enabling the Operator to quickly identify the current status of the UPS system and to perform
most of the manual operations. The operator display screen is driven by an easy-to-follow menu-
prompted software program. The internal control system executes programs which generate mes-
sages on this display screen. Screen messages instruct the Operator during start up, operation, and
shutdown. The screen also displays status information upon request. Operating the UPS consists of
watching the indicators on the operator control panel and making appropriate responses. Further
UPS monitoring and testing is achieved by navigating through a series of menu selections on the dis-
play screen.
Figure 2 80 kVA UPS outside and inside views
Table 1 Key locations on UPS
Item Description Function
1 Operator Control Panel Contains Display screen, Navigation buttons and Emergency Power OFF button.
2 Rotary Switch Provides manual selection of Normal, Bypass and Service modes.
3 Fuse Blocks Contain fuses for UPS control power.
3
2
1

Table of Contents

Related product manuals