EasyManua.ls Logo

Mackie ProFX6v3 - Profxv3 Block Diagrams

Mackie ProFX6v3
42 pages
Print Icon
To Next Page IconTo Next Page
To Next Page IconTo Next Page
To Previous Page IconTo Previous Page
To Previous Page IconTo Previous Page
Loading...
ProFXv3 Professional Effects Mixer with USB
ProFXv3 Professional Effects Mixer with USB
30
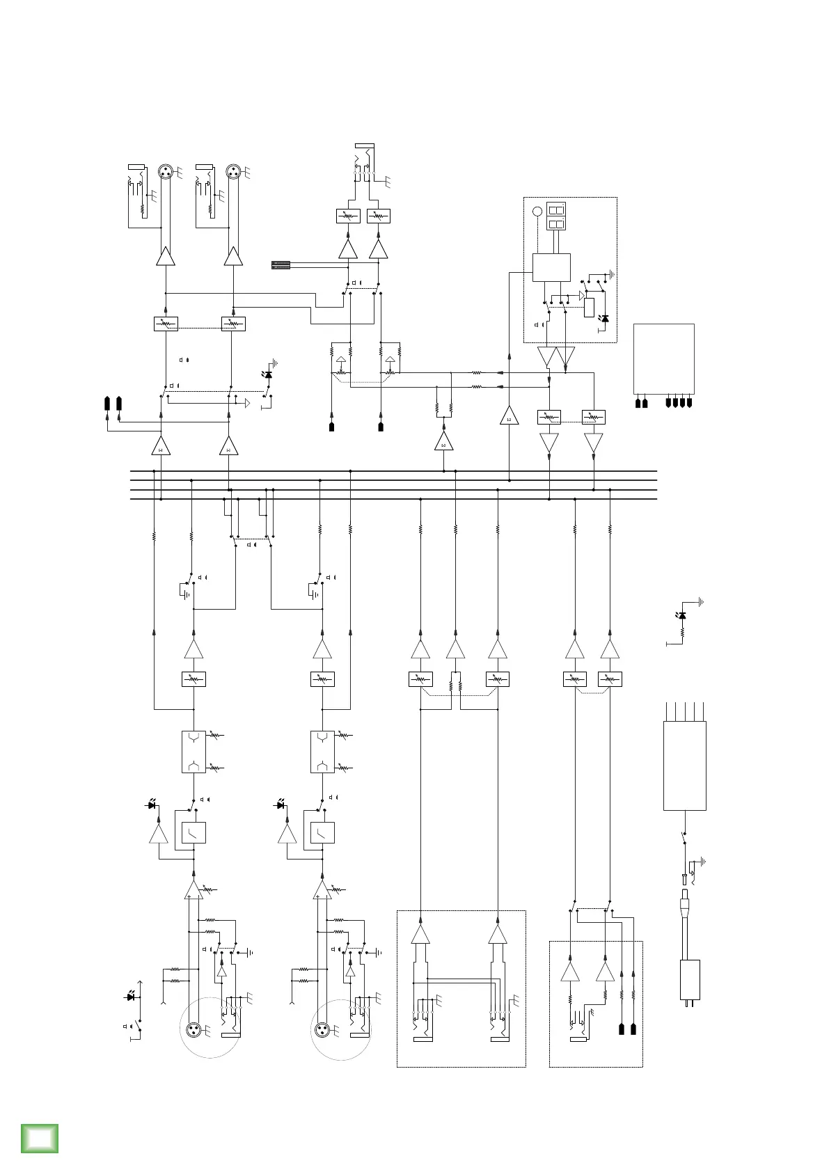
ProFX6v3 Block Diagram
STEREO
PAN
DIRECT MON
TO PHONES /CR
PHONES LEVEL
4
3
1
5
2
Main Output
Main Meters
Main LEVEL
Main L
FX
Main R
DIRECT MON
DC TO DC POWER BOARD
+15V
-15V
+48V
+5V
GND
POWER Adapter
POWER SWITCH
1
2
3
AC 100-240V
POWER JACK
Mic: 0 to +60dB
Line: -20 to +40dB
low cut
100Hz
48V
Phantom Power
(To All Mics)
OFF
ON
Level set
Switch/LED
Global 48v
low cut in
Lo Hi
80 12k
2-Band EQ
CH LEVEL
LINE IN 3
L (MONO)
LINE IN 4
R
4
3
1
5
2
LINE IN
5/6
FX LEVEL
DIRECT MON BLEND
FX
FX module
Out L
Out R
In
FX
Preset Selecter
Preset Select
FX
Gain
Mic: 0 to +60dB
Line: -20 to +40dB
Phantom Power
Line
Hi-Z
low cut
100Hz
Level set
Line
Mic
Lo HI
80 12k
2-Band EQ
Mic/Line/Line-Hi-Z
Mono Channel
2CH
Gain
Phantom Power
Line
Hi-Z
Line
Mic
Mic/Line/Line-Hi-Z
Mono Channel
1CH
Left
4
3
1
5
2
Right
Main L
FX
Main R
DIRECT MON
USB AUDIO
Out
In
up to 192k/24bit
Combo
Combo
"4/1 SRTlecnahC oeretS
OFF
ON
OFF
ON
OFF
ON
Stereo Chancel TRS 1/8"
Power Led
VCC
GND
Select
low cut in
OFF
ON
OFF
ON
OFF
ON
VCC
BREAK
Mutcs all channcls
OFF
ON
PHONES
OFF
ON
Display
VCC
FX ByPass
Logic
USB_IN_R
USB_IN_L
USB IN R
USB IN L
USB1
USB2
USB3
USB4
USB1
USB2
USB3
USB4
CH1-4
CH LEVEL
CH LEVEL
CH LEVEL
CH LEVEL
FX MUTE
Note:Switch are shown in the default (out) position

Other manuals for Mackie ProFX6v3

Related product manuals