EasyManua.ls Logo

Mackie Thump 15 - Large Club System Diagram

Mackie Thump 15
20 pages
Print Icon
To Next Page IconTo Next Page
To Next Page IconTo Next Page
To Previous Page IconTo Previous Page
To Previous Page IconTo Previous Page
Loading...
Thump12 • Thump15 Powered Loudspeakers
8
Thump12 • Thump15 Powered Loudspeakers
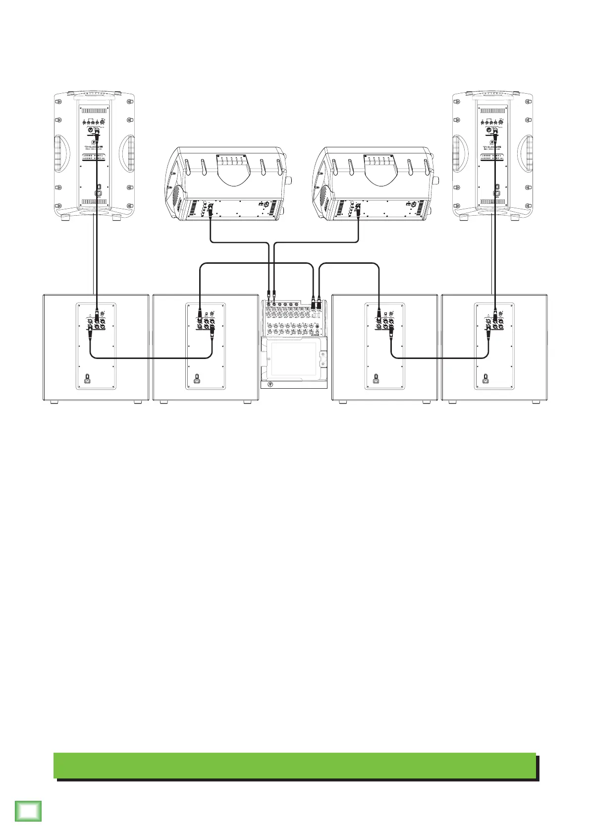
Large Club System
Hookup Diagrams continued...
Here’s how to set up a large club system. In this example, the L/R outputs of a DL1608 mixer are
connected directly to the channel A inputs of two Thump18S subwoofers. The channel A full range
outputs of these two Thump18S subwoofers are connected directly to the channel A inputs of another
set of Thump18S subwoofers. Talk about beefy low end...and we’ve only connected the subs!
The channel A high pass outputs of the last two Thump18S subwoofers are connected directly to the
inputs of the main pair of Thump15 loudspeakers.
The aux 1 and aux 2 sends from the mixer are connected directly to the inputs of a pair of Thump12
loudspeakers to be used as monitors for the band.

Related product manuals