EasyManua.ls Logo

Mackie Thump15BST - Large Club System Configuration

Mackie Thump15BST
30 pages
Print Icon
To Next Page IconTo Next Page
To Next Page IconTo Next Page
To Previous Page IconTo Previous Page
To Previous Page IconTo Previous Page
Loading...
Owner’s Manual
9
Owner’s Manual
Large Club System
MUSIC LIVE SPEECH
SUB SUB
+ +
MON
MUSIC W/ SUBWOOFER
SPEAKER VOICING
MUSIC LIVE SPEECH
SUB SUB
+ +
MON
MUSIC W/ SUBWOOFER
SPEAKER VOICING
Hookup Diagrams continued...
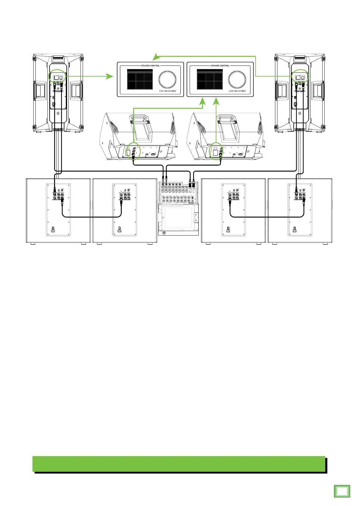
Here’s how to set up a large club system. In this example, the L/R outputs of a DL1608 mixer are
connected directly to the CH1 inputs of a pair of Thump15BST loudspeakers. The Speaker Modes
of these PA loudspeakers may be set to Music + Sub.
The Mix Out of each loudspeaker is then connected to the channel A input of a pair of Thump18S
subwoofers.From here, the channel A full range outputs of the two outer Thump18S subwoofers
are connected directly to the channel A inputs of another set of Thump18S subwoofers. Talk about
beefy low end!
The aux 1 and aux 2 sends from the mixer are connected directly to the CH1 inputs of a pair of
Thump12BST loudspeakers to be used as monitors for the band. The Speaker Modes of the monitor
loudspeakers may be set to Monitor.
There is no device shown in this hookup diagram, but it is entirely possible to connect one... after all,
there is still a Bluetooth channel! It would be good for playback music during band breaks and set
changeovers. The possibilities are endless!

Other manuals for Mackie Thump15BST

Related product manuals