EasyManua.ls Logo

magicpak EWC V-Series - Page 11

Default Icon
12 pages
Print Icon
To Next Page IconTo Next Page
To Next Page IconTo Next Page
To Previous Page IconTo Previous Page
To Previous Page IconTo Previous Page
Loading...
507390-03 Issue 2217 Page 11 of 12
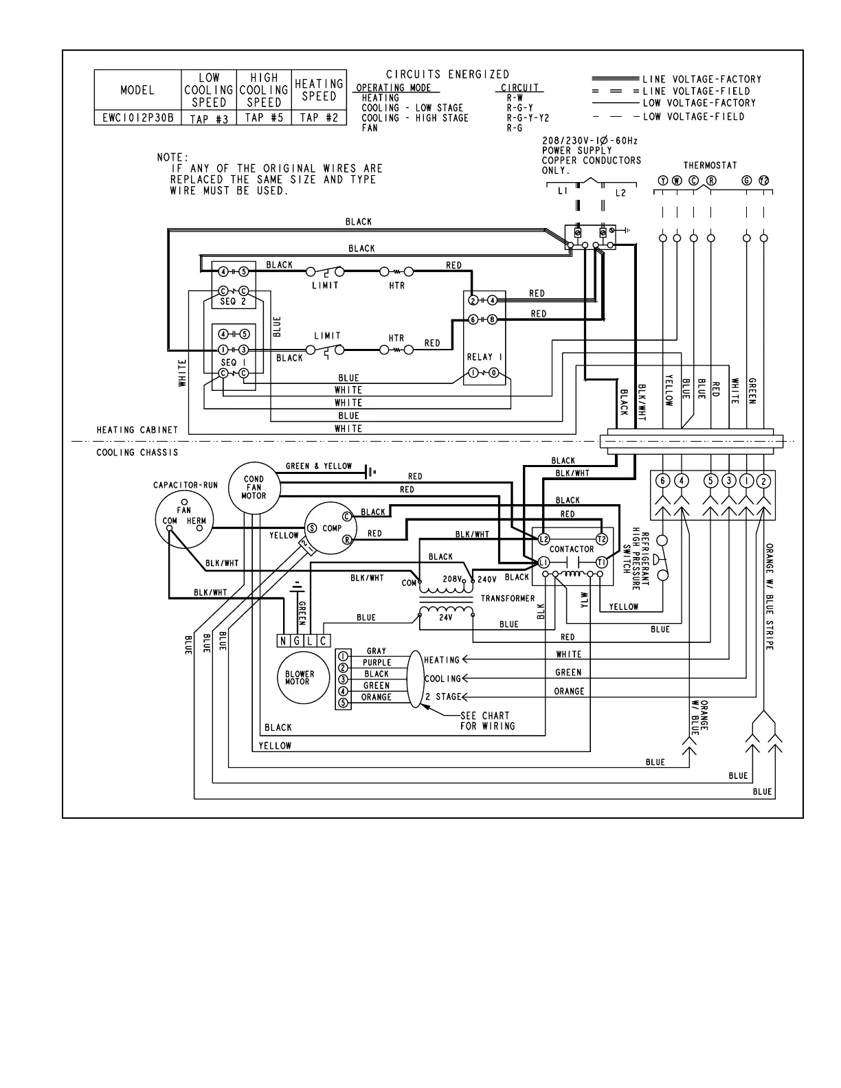
Figure 6. Wiring Diagram - EWC1012P30B

Related product manuals