EasyManua.ls Logo

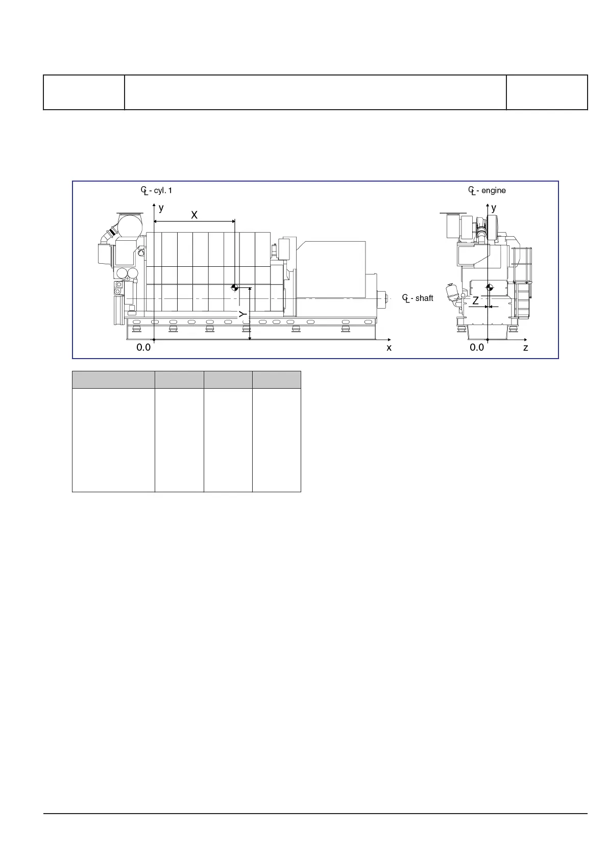
Man L27/38 - Centre of Gravity

Man L27/38
392 pages
Print Icon
To Next Page IconTo Next Page
To Next Page IconTo Next Page
To Previous Page IconTo Previous Page
To Previous Page IconTo Previous Page
Loading...
Description
Engine type X - mm Y - mm Z - mm
5L27/38
6L27/38
7L27/38
8L27/38
9L27/38
1520
1805
2050
2390
2680
1475
1480
1485
1490
1490
0
0
0
0
0
The values are based on water-cooled alternator,
make Hyundai. If another alternator is chosen, the
values will change.
MAN Diesel & Turbo
1679708-8.2
Page 1 (1)
Centre of gravity
B 10 01 1
L27/38S, L27/38
2015.02.20

Table of Contents

Related product manuals