EasyManua.ls Logo

Marantz SR6011 - Wiring Diagram

Marantz SR6011
197 pages
Print Icon
To Next Page IconTo Next Page
To Next Page IconTo Next Page
To Previous Page IconTo Previous Page
To Previous Page IconTo Previous Page
Loading...
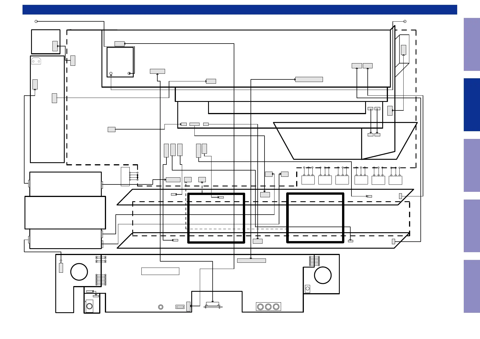
WIRING DIAGRAM
Bridge Diode
SMPS PCB
INLET
TUNER PACK
HEIGHT PCB PCB
MAIN TRANS
WIRING DIAGRAM
CUP12848Z
WAFER/7P/2mm
(PROT.LINE)
SPK, REG. PCB
CUP12852Z-1
CUP12852Z-2
(SR6011)
WiFi Antenna WiFi Antenna
WAFER/2P/7.92mm
CN902
CJP02GB89ZY
CWB7D006220AGD
WIRE/6P/2.5mm/220mm
BN901
CJP40GA193ZY
CN69B
FFC WAFER/40P/1mm
CN321
WAFER/5P/2mm
CJP05GI288ZY
CN704
CJP07GA208ZY
CN781
WAFER/6P/2mm
(PROT.LINE)
CJP06GA208ZY
CN431
CJP23GA333ZR
(FRONT HDMI)
FFC WAFER/23P/1mm
WAFER/6P/2.5mm
(DIGITAL POWER)
CJP06GA353ZJ
CN903
VIDEO PCB
CUP12851Z
CN951
CJP03GI289ZY
WA
FER/3P/2.5mm
BN951
WIRE/3P/2.5mm/50mm
CN971
WAFER/7P/3.96mm
CJP07GA90ZY
FCC WAFER/13P/1.25mm
CJP13GA115ZY
CN961
BN462
INPUT PCB
CUP12860Z
HDAM PCB
CUP12635Z
WAFER/3P/2mm
CJP03GI288ZY
CN706
CN706 BN461
FRONT CNT. PCB
CUP12856Z
SIDE CNT.PCB
CUP12857Z
4CH AMP. PCB
CUP12862Z-2
Network PCB
WiFi Antenna WiFi Antenna
CON2
CON1
DIGITAL PCB
CUP12846Z
BN461
BN462
WIRE/9P/2mm/450mm
WIRE/7P/2mm/500mm
CWB7BZ07500HC
FAN_2
5CH AMP. PCB
CUP12862Z-1
FAN_1
HEAT SINK
FCC CABLE
CN462
WAFER/7P/2mm
CJP07GI288ZY
CN461
WAFER/9P/2mm
CJP09GI288ZY
CUP12871Z
H/P PCB
ENCODER PCB
FUNCTION
VOLUME ENCODER
MIC
FL601
AUX
CUP12624Z-2
FRONT HDMI PCB
REMOCON SENSE
BN63A
CWB1C005100CC
WIRE/5P/2mm/100mm
UL1007#24
BN63A
CWB1C005100CC
WIRE/5P/2mm/100mm
UL1007#24
BN63B
BN63B
BN605
CWB8A005430HC
WIRE/5P/2mm/430mm
UL2725#24/#28,1P+2C USB
USB JACK
FRONT VFD PCB
CUP12866Z-1
CJP40GB284ZN
CN69A
FFC WAFER/40P/1mm
CJP07GB03ZY
WAFER/7P/2.5mm
CN605
FRONT HDMI PCB
FFC WAFER/23P/1mm
CJP23GA333ZR
CN101
CUP12860Z-5
(PRI.)
WIRE/2P/3.96mm/130mm WIRE/5P/3.96mm/220mm
(AMP PWR)
(S1)
(S5/S6)
WIRE/4P/2.5mm/270mm
(FL PWR)
WIRE/4P/2.5mm/220mm
(S3/S4)
WIRE/3P/2.5mm/300mm
(S2)
7812
7907
7805
7905 7805
7807
CN711
WAFER/3P/2mm
CJP03GI352ZY
CN712
WAFER/3P/2mm
CJP03GI352ZY
CN940
WAFER/5P/2.5mm
CJP05GI289ZY
CN941
WAFER/3P/2.5mm
CJP03GI289ZY
BN708
BN707
BN702
BN706
WIRE/3P/2mm/500mm
CWB7C003500HC
WAFER/6P/2.5mm
CJP06GI289ZY
CN701
CN701
CN702
WAFER/5P/2.5mm
CJP05GI289ZY
CN702
CN703
WAFER/4P/2.5mm
CJP04GI289ZY
CN703
CN707
WAFER/5P/2.5mm
CJP05GI289ZY
CN707
CN708
WAFER/6P/2.5mm
CJP06GI289ZY
CN708
CN461
BN961
CWB1E0030503D
BN708
BN707
WIRE/6P/2.5mm/650mm
WIRE/5P/2.5mm/550mm
CWB7EZ055503D
BN702
WIRE/5P/2.5mm/150mm
VWB7E0051503D
CWB7EZ066503D
VWB7E0062803D
BN701
WIRE/6P/2.5mm/280mm
BN703
WIRE/4P/2.5mm/170mm
CWB7E0041703D
WIRE/3P/2mm/100mm
CWB1B003100HC001
BN322
WIRE/3P/2mm/150mm
CWB1B003150HC001
BN325
BN322
BN325
CN9601 CN9602
WAFER/3P/2mm
CJP03GI288ZY
CN9601
WAFER/3P/2mm
CJP03GI288ZY
CN9602
WIRE/7P/2mm/150mm
CWB7B007150AAC
BN704
WIRE/6P/2mm/280mm
CWB7B006280AAC
BN781
CWB7B009450HC
65
Caution in
servicing
Electrical Mechanical Repair Information Updating

Other manuals for Marantz SR6011

Related product manuals