EasyManua.ls Logo

MasterCraft 055-5530-8

MasterCraft 055-5530-8
20 pages
To Next Page IconTo Next Page
To Next Page IconTo Next Page
To Previous Page IconTo Previous Page
To Previous Page IconTo Previous Page
Loading...
WARNING!
To reduce the risk of injury, make sure the chuck key is removed from the chuck before starting
any drilling operation.
Fig. 26
DRILLING A HOLE
Use a centre punch or sharp nail to dent the workpiece where you want the hole. With the switch Off, bring
the drill bit down to the workpiece, lining it up with the hole location. Turn the switch On and pull down on
the feed handles with only enough effort to allow the drill to cut.
Feeding too slowly might cause the drill bit to burn.
Feeding too rapidly might stop the motor, causing the belt or drill to slip, tearing the workpiece loose, or
breaking the drill bit.
For deeper cuts, drill into the workpiece about 1/4" (6.4 mm) and raise the drill bit out of the workpiece.
This will clear chips out of the hole. Drill again another 1/4" (6.4 mm) and raise the drill bit out of the hole
to clear debris and chips. Repeat until finished drilling the hole. Practice with scrap material to get the
feel of the machine before attempting to do any regular drilling operation.
When drilling metal, it will be necessary to lubricate the tip of the drill with oil to prevent overheating the
drill bit.
DRILLING TO A SPECIFIC DEPTH
Drilling a blind hole (not all the way through the workpiece) to a given depth can be done in two ways.
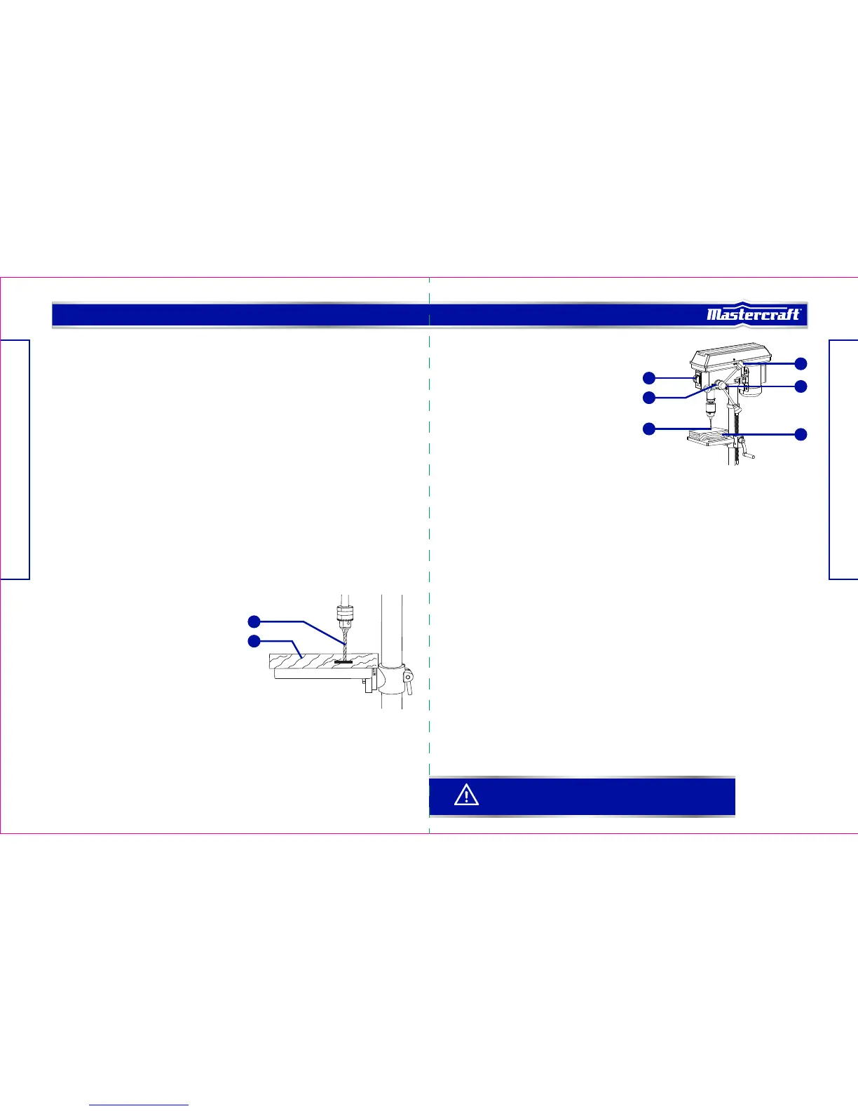
WORKPIECE METHOD (Fig. 26)
Mark the desired depth of the hole on the side of the
workpiece (1).
With the switch off, bring the drill bit (2) down until the
tip is even with the mark.
Hold the feed handle at this position.
Lock the depth scale lock knob. The chuck and the drill
bit will now be stopped at the distance selected on the
depth scale.
model no. 055-5530-8 | contact us 1-800-689-9928
31
OPERATING INSTRUCTIONS
30
OPERATING INSTRUCTIONS
DEPTH SCALE METHOD (Fig. 27)
With the switch (1) Off, turn the feed handle (2) until
the drill bit tip (3) slightly touches the top of the
workpiece (4).
Hold the feed handles in that position.
Loosen the depth lock knob (5).
Spin the depth scale hub (6) until the desired drilling
depth is at the scale pointer.
Lock the depth lock knob. The chuck and drill bit will
now drill into the workpiece only to the distance
selected on the depth scale.
GENERAL DRILLING GUIDELINES
DRILLING SPEEDS
Important factors when determining the best drilling speed:
Type of material
Size of the hole to be drilled
Type of drill bit or cutter
Desired quality of the cut
Remember, smaller drill bits require greater speed than larger drill bits. Softer materials require greater speed
than harder materials.
DRILLING METAL
Use metal-piercing twist drill bits.
It is always necessary to lubricate the tip of the drill with oil to prevent overheating the drill bit.
All metal workpieces should be clamped down securely. Any tilting, twisting, or shifting causes a rough
drill hole and increases the potential of drill bit breakage.
Never hold a metal workpiece with your bare hands. The cutting edge of the drill bit may seize the
workpiece and throw it, causing serious injury. The drill bit will break if the metal piece suddenly hits the
column.
If the metal is flat, clamp a piece of wood under it to prevent turning. If it cannot be laid flat on the table,
then it should be blocked and clamped.
Fig. 27
1
2
1
6
3
4
5
2

Related product manuals