EasyManua.ls Logo

Mastervolt WHISPER 12 ULTRA

Mastervolt WHISPER 12 ULTRA
48 pages
To Next Page IconTo Next Page
To Next Page IconTo Next Page
To Previous Page IconTo Previous Page
To Previous Page IconTo Previous Page
Loading...
DIAGRAMS & DRAWINGS
40 Copyright © 2009 Mastervolt / May 2009 / Whisper 6/8/12/16 Ultra for mobile applications / EN
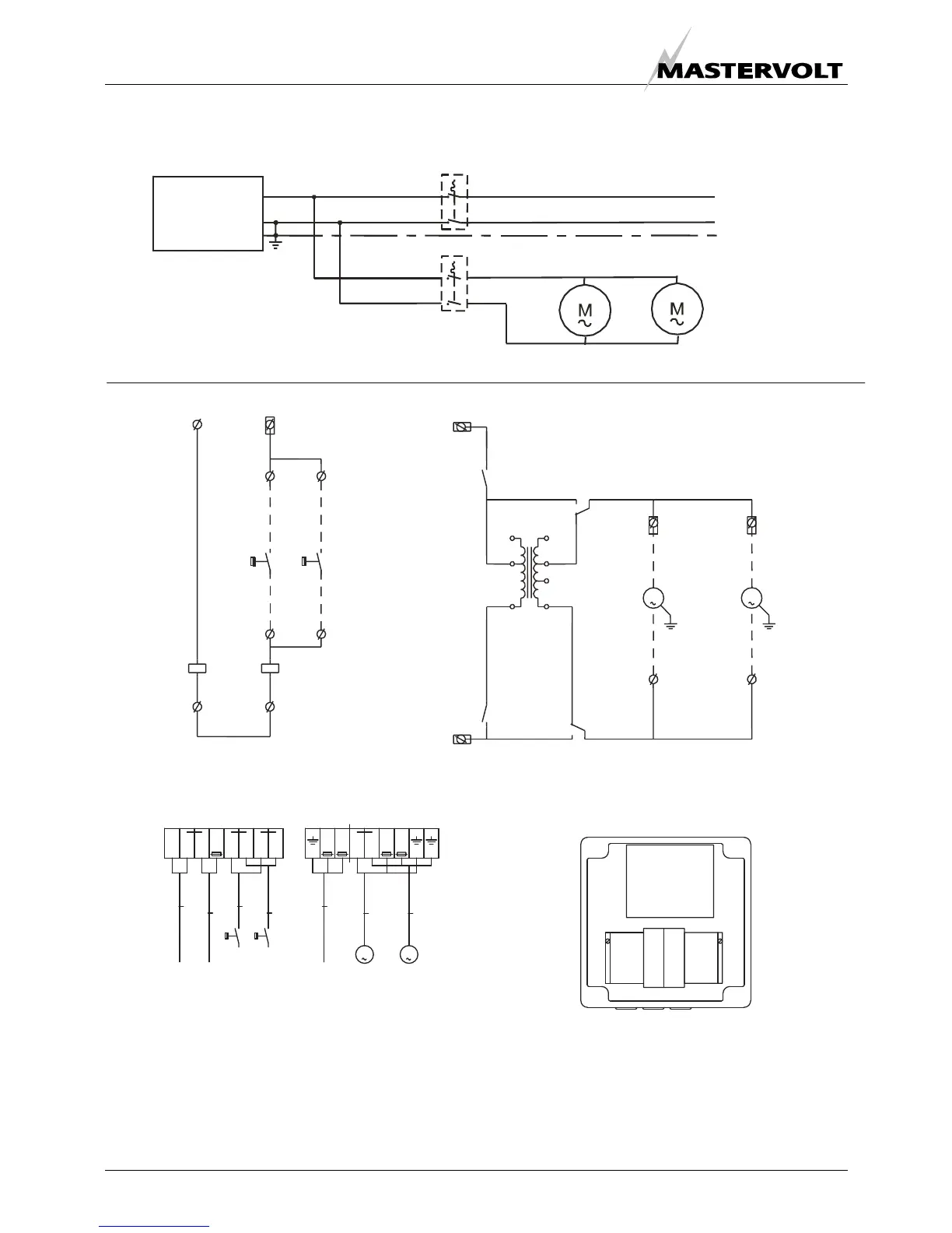
4.8 ELECTRICAL DIAGRAM RADIATOR FAN CONTROL 230VAC
TERMINAL BLOCK
GENERATOR CONTACT
PUMP (PCB)
THERMOSTAT GENERATOR
THERMOSTAT ENGINE
RADIATOR COOLER
GENERATOR
BATTERY
230VAC
ENGINE
RADIATOR COOLER
GENERATOR
12VDC
M
230VAC
M
230VAC
5A
16
CU1,5
+
1
-
2
CU0,75
80-70?C
CU0,75
45-35?C
CU0,75
6
-
3
5A
45 87
CU1,5
230VAC
CU1.5
6,3A
11
6,3A
12 1413 15
5A
CU1.5
DIMENTION BOX: 270x270x180 MM
JUNCTION BOX AIR FANS
12VDC K1 K2
230/115VAC
200VA
TRAFO
230VAC
Fig. 45: Electrical diagram fan control using 230V
AC radiator fans – with two speeds fans (optional)
FUSE 5A
FUSE 6.3A
FUSE 6.3A
FUSE 5A
FUSE 5A
15 16
5 6
7
8
13 14
11
1
4
2
3
K2
K1
K2
K1
BAT.
+12V
PUMP
+12V
GENERATOR
230VAC (L1)
K1
BAT.
12V
GENERATOR
230VAC (N)
230VAC
230VAC
45-35°C80-70°C
THERMOSTAT COOLER
ENGINE GENERATOR
RADIATOR COOLER
ENGINE
RADIATOR COOLER
GENERATOR
K2
12
A2A2
A1 A1
11
11
14
14
12
41
41
42
44
44
230V
120V
115V
110V
0
0
TRANSFORMER
230V/115VAC
200VA
400V
M M
GENERATOR
L1
N
MAIN CIRCUIT
BREAKER
AC LOAD
CIRCUIT
BREAKER
AIR FANS
6A
Fig. 44: Electrical diagram for standard fan control
using 230V AC radiator fans

Other manuals for Mastervolt WHISPER 12 ULTRA

Related product manuals