EasyManua.ls Logo

Maytag MDE17MN - Typical Cycle of Operation

Maytag MDE17MN
150 pages
Print Icon
To Next Page IconTo Next Page
To Next Page IconTo Next Page
To Previous Page IconTo Previous Page
To Previous Page IconTo Previous Page
Loading...
3-3
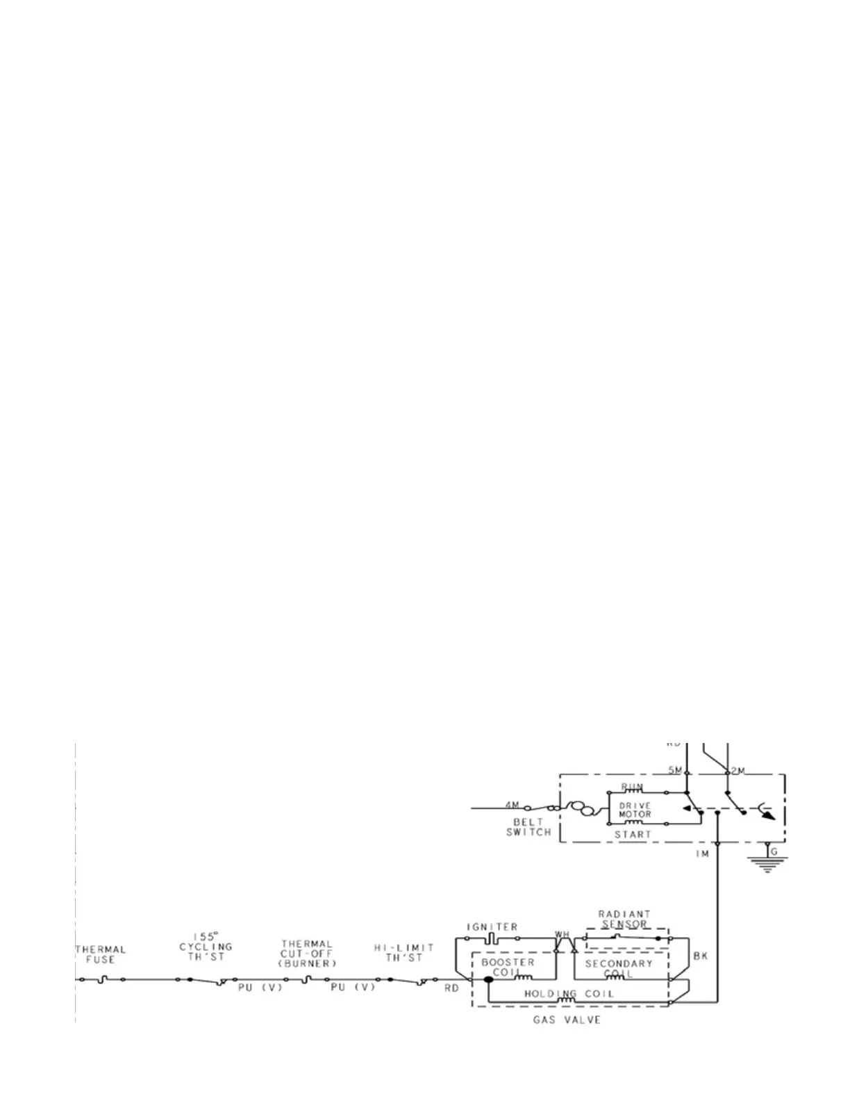
Using this same theory we can show that
if there is line voltage showing at the 2 pin
connector for the gas valve, then all of the
thermal components are closed and OK! We
would also know that the motor switch 1 to 2 is
closed as well, because the neutral side of line
voltage must pass through this motor switch
that is only closed if the motor is running.
With Electric heat models, as with gas heat
models, when the motor reaches full speed
and the centrifugal switch trips, the switches
change state, although with electric heat
models full line voltage (208-240volts) is
supplied to the heating element when the
motor switch 1 to 2 is closed.
When WHITES AND COLORS is selected,
the high heat cycle is activated. The high temp
cycle uses the circuit that involves the 68°C
(155°F) operating thermostat.
When the cycle type is selected on PD models
the dryer motor circuit is energized. The motor
has power sent to both the Run and the Start
windings, motor switch terminals 5 & 3. When
the motor reaches run speed the centrifugal
switch snaps closed and the switches in the
motor switch change position. Motor switch
5 & 6 continues to power the main motor
winding but the switch contact to the Start
winding 5 & 3 is opened, which drops the start
winding out of the circuit. At the same time
motor switch 1 closes to motor switch 2 which
allows the circuit to close, completing the
heater circuit. Now the blower, the drum, and
the heat are all working.
Notice the components in this gas heat circuit;
heat can be shut off by opening any of the in-
line components:
1. Thermal Fuse
2. Cycling Thermostat
3. Thermal Cut-Off
4. Hi-Limit T/Stat
5. Motor Switch 1 to 2
6. Gas Valve Coils
TYPICAL CYCLE OF OPERATION

Table of Contents

Other manuals for Maytag MDE17MN

Related product manuals