EasyManua.ls Logo

Maytag MDG35 - MDG52 Specifications

Maytag MDG35
18 pages
Print Icon
To Next Page IconTo Next Page
To Next Page IconTo Next Page
To Previous Page IconTo Previous Page
To Previous Page IconTo Previous Page
Loading...
6 Maytag Co. 112204-6
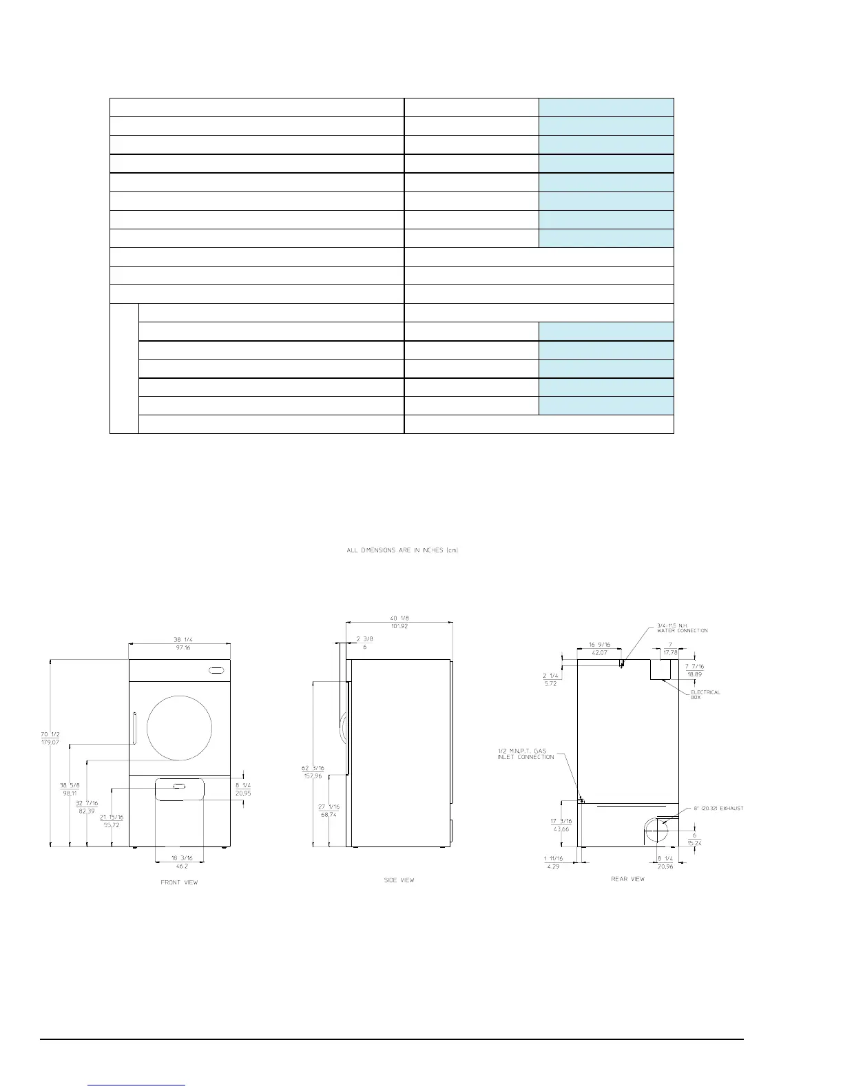
MAXIMUM CAPACITY (DRY WEIGHT) 50 lb
22.68 kg
TUMBLER DIAMETER 37
93.98 cm
TUMBLER DEPTH 25-3/4”
65.41 cm
TUMBLER VOLUME 16.02 cu ft
453.64 L
TUMBLER / DRIVE MOTOR 3/4 hp
0.56 kW
BLOWER / FAN MOTOR 1/2 hp
0.37 kW
DOOR OPENING (DIAMETER) 27-3/8
69.53 cm
DOOR SILL HEIGHT 27-5/16
69.37 cm
WATER CONNECTION 3/4”-11.5 NH
DRYERS PER 20 / 40 CONTAINER 10 / 22
DRYERS PER 53 TRUCK 28
VOLTAGE AVAILABLE 120 1ø 2w 60 Hz
APPROXIMATE NET WEIGHT 610 lb
276.69 kg
APPROXIMATE SHIPPING WEIGHT 640 lb
290.30 kg
AIRFLOW 600 cfm
17.00 cmm
HEAT INPUT 110,000 Btu/hr
27,720 kcal/hr
EXHAUST CONNECTION (DIAMETER) 8
20.32 cm
INLET PIPE CONNECTION 1/2 M.N.P.T.
MDG52 Specifications _____________________________________________________________
Shaded areas are stated in metric equivalents 6/17/13
NOTE: The manufacturer reserves the right to make changes in specifications at any time without notice or obligation.
GAS

Related product manuals