EasyManua.ls Logo

Maytag MFS80 - Page 4

Maytag MFS80
36 pages
Print Icon
To Next Page IconTo Next Page
To Next Page IconTo Next Page
To Previous Page IconTo Previous Page
To Previous Page IconTo Previous Page
Loading...
4
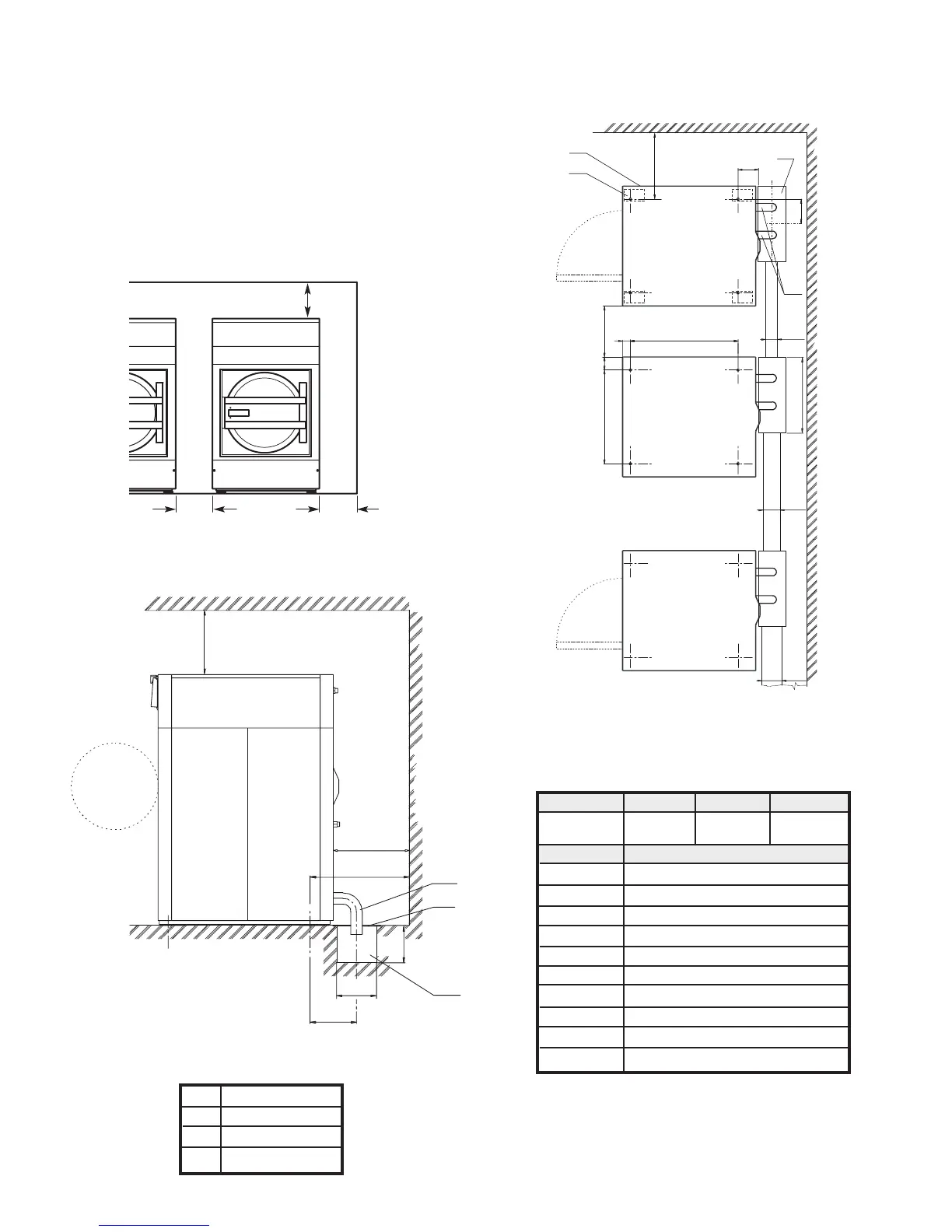
Side View
1. Washer contour line
2. Washer foot
3. Waste sump
4. Drain with elbow
Spacing
Washers require 2.4 ft (0.7 m) above the top for
maintenance.
Washers require 2.4 ft (0.7 m) (Models MFS80/MFS100/
MFS125) and 2.6 ft (0.8 m) (Models MFS180/MFS230/
MFS275) between the sides for maintenance and maximum
door clearance.
Allow 3.3 ft (1 m) behind washer and the wall for
maintenance.
Front View
PP
28"
(711 mm)
2.3 ft
(0.7 m)
2.3 ft
(0.7 m)
2.3 ft
(0.7 m)
1. Drain with elbow
2. Cover of waste pump
3. Waste sump
Spacing Between Multiple Washers and Feet Placement
X3 46.25" (1175 mm)
X9 14" (350 mm)
X10 12" (300 mm)
X11 9" (250 mm)
Dimensions
Feet Placement
Distance MS80 MS100 MS125
X1 38.19" 42.13" 49.21"
(970 mm) (1070 mm) (1250 mm)
Distance All Models
X2 36.61" (930 mm)
X4 32.7" (830 mm)
X5 5.12" (130 mm)
X6 3.03" (77 mm)
X12 8" (200 mm)
X13 9" (250 mm)
X14 29.5" (750 mm)
X15 6" (150 mm)
X16 7" (180 mm)
X17 8" (200 mm)
X3
40
"
1000 mm
700 mm
28
"
1
2
3
X9
X10
X11
X4
X12
X13
X14
X15
X1
X6
X16
700 mm 28
"
X5
X2
X17
2
1
3
4
Models MFS80, MFS100, MFS125
Models MFS80, MFS100, MFS125

Related product manuals