EasyManua.ls Logo

McQuay M5LCY10FR - Instalación de la Unidad Exterior; Unidad Interior

McQuay M5LCY10FR
120 pages
Print Icon
To Next Page IconTo Next Page
To Next Page IconTo Next Page
To Previous Page IconTo Previous Page
To Previous Page IconTo Previous Page
Loading...
hs
i
l
g
nE
Español
4-5
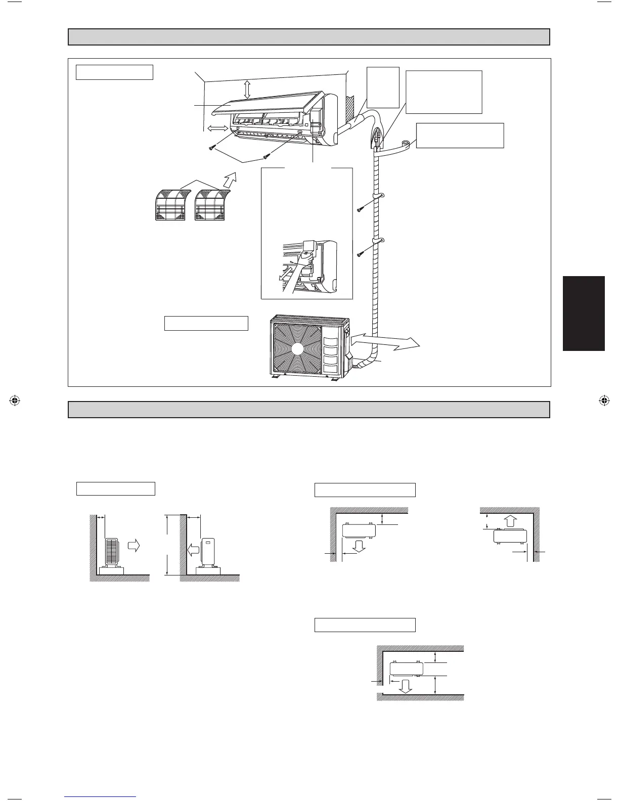
DIAGRAMMA DE LA INSTALACIÓN
INSTALACIÓN DE LA UNIDAD EXTERIOR
Si hay una pared o cualquier otro obstáculo que pueda bloquear la toma de entrada o el fl ujo de ventilación de la unidad, siga
las instrucciones de instalación que se especifi can a continuación.
Para todos los modelos de instalación que se muestran a continuación, la altura de la pared en el lado de la ventilación debe
ser 1.200mm o menos.
Unidad Interior
30mm o más desde el techo
Panel frontal
50mm o más desde las
paredes (en ambos lados)
Filtros de aire
Unidad Exterior
Calafatee el
huelgo del
orifi cio del
tubo con
masilla.
Corte el tubo termoaislante a
un largo apropiado y enrollarlo
con la cinta, cuidando de que no
quede ningún huelgo en la línea
de corte del tubo aislante.
Enrollar el tubo aislante con cinta de
acabado desde abajo hacia arriba.
Tapa de servicio
Abrir la tapa de servicio
La tapa de servicio es de tipo
apertura/cierre.
Método de apertura
1) Retire los tornillos de la tapa
de servicio.
2) Extraiga la tapa de servicio
tirando de ella hacia abajo en
diagonal, en el sentido de la
echa.
3) Tire hacia abajo.
250mm desde el muro
M4 X 12L
Pared a un lado
Pared a ambos lados
Pared a los tres lados
Más de 150
Más de 300
Más de 50
Vista superior
unidad: mm
Más de 50 Más de 100
Vista lateral
Más de 50 Más de 50
Vista superior
Más de 100
1.200
o menos
Más de 150
McQuay IM-WMJ-0111(0)_ES.indd 5McQuay IM-WMJ-0111(0)_ES.indd 5 1/12/2011 1:36:11 PM1/12/2011 1:36:11 PM

Table of Contents

Related product manuals