EasyManua.ls Logo

McQuay M5LCY10FR - Diagramme Dinstallation; Installation de Lunité Extérieure

McQuay M5LCY10FR
120 pages
Print Icon
To Next Page IconTo Next Page
To Next Page IconTo Next Page
To Previous Page IconTo Previous Page
To Previous Page IconTo Previous Page
Loading...
5-5
hs
i
l
g
nE
Français
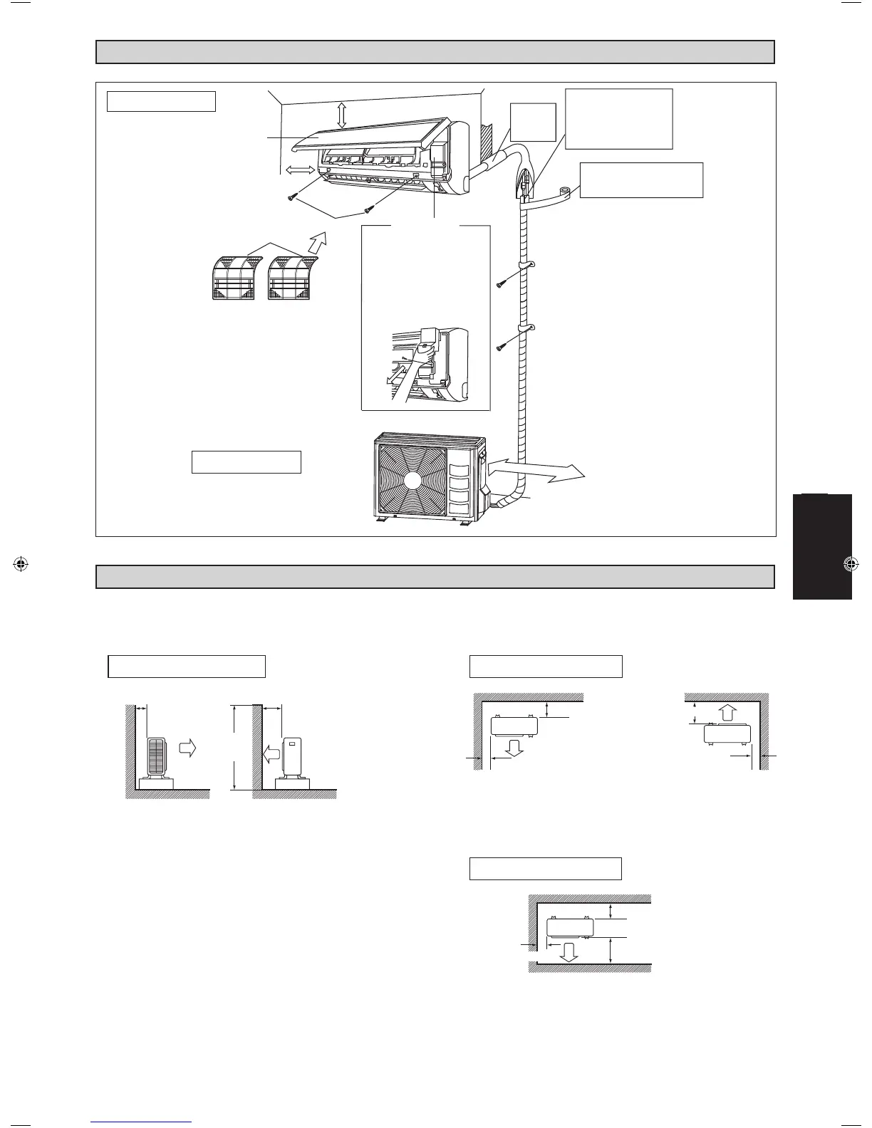
DIAGRAMME D’INSTALLATION
INSTALLATION DE L’UNITÉ EXTÉRIEURE
Si un mur ou un autre obstacle obstrue l’entrée ou la circulation de l’air de l’unité extérieure, suivez les instructions d’installation
ci-dessous.
Pour tous les modèles d’installation ci-dessous, la hauteur du mur côté évacuation doit être inférieure ou égale à 1200mm.
250mm des murs
Unité Intérieure
30mm ou plus du plafond
Panneau avant
50mm ou plus des murs
(des deux côtés)
Filtres à air
Unité Extérieure
Trou pour la
tuyauterie
calfaté avec
du mastic.
Coupez le tuyau d’isolation
thermique sur une longueur
appropriée et enroulez-la de
ruban en vous assurant qu’aucun
espace n’est laissé à l’endroit
de la coupe du tuyau d’isolation
thermique.
Enroulez le tuyau d’isolation avec la
bande de fi nition du bas jusqu’en haut.
Couvercle de service
Ouverture du couvercle de
service
Le couvercle de service est de
type à ouverture/fermeture.
• Méthode d’ouverture
1) Enlevez les vis du couvercle
de service.
2) Abaissez le couvercle de
service en diagonale dans le
sens de la fl èche.
3) Tirez vers le bas.
Mur face à l’un des côtés Murs face à deux côtés
Plus de 50
Plus de 100
Vue latérale
Plus de 50
Plus de 100
Plus de 150
Plus de 50
Vue supérieure
Murs face à trois côtés
Plus de 150
Plus de 300
Plus de 50
Vue supérieure
unité: mm
M4 X 12L
1200 ou
moins
McQuay IM-5WMYJ-1110(0)_FR.indd 5McQuay IM-5WMYJ-1110(0)_FR.indd 5 1/12/2011 12:13:51 PM1/12/2011 12:13:51 PM

Table of Contents

Related product manuals