EasyManua.ls Logo

McQuay M5LCY10FR - Page 79

McQuay M5LCY10FR
120 pages
Print Icon
To Next Page IconTo Next Page
To Next Page IconTo Next Page
To Previous Page IconTo Previous Page
To Previous Page IconTo Previous Page
Loading...
6-5
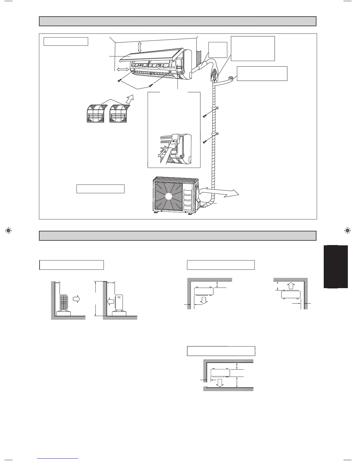
KURULUM ŞEMASI
DIŞ ÜNİTENİN KURULUMU
Dış ünitenin yolu üzerinde bir duvar veya başka bir engelin bulunması durumunda, aşağıdaki montaj talimatlarına uyun.
Aşağıdaki kurulum şekillerinden herhangi biri için, egzoz tarafındaki duvar yüksekliği 1.200mm veya daha az olmalıdır.
hs
i
l
g
nE
Türkçe
Bir tarafa bakan duvar
50’den fazla 100’den fazla
1.200 veya
daha az
Yandan görünüm
İki tarafa bakan duvarlar
50’den fazla
100’den fazla
150’den fazla
50’den fazla
Üstten görünüm
Üç tarafa bakan duvarlar
150’den fazla
300’den fazla
50’den fazla
Üstten görünüm
ünite: mm
İç Ünite
Tavandan 30mm veya daha fazla
Ön panel
Duvarlardan 50mm veya
daha fazla (her iki tarafta)
Hava filtresi
Dış Ünite
Boru deliği
genişliğini
macunla
kaplayın.
Termal yalıtım borusunu uygun
bir uzunluğa kadar kesin ve
bantla sarın, yalıtım borusunun
kesim hattında hiçbir boşluk
kalmadığından emin olun.
Yalıtım borusunu bitirme bandıyla
aşağıdan yukarı sarın.
Servis kapağı
Servis Kapağını Açma
Servis kapağı açılır / kapanır tip.
• Açma yöntemi
1) Servis kapağı vidalarını çıkar.
2) Servis kapağını okun
doğrultusunda çaprazlama şekilde
aşağı çekin.
3) Aşağı çekin.
Duvardan 250mm
M4 X 12L
McQuay IM-5WMYJ-1110(0)_TR.indd 5McQuay IM-5WMYJ-1110(0)_TR.indd 5 1/12/2011 1:50:37 PM1/12/2011 1:50:37 PM

Table of Contents

Related product manuals