EasyManua.ls Logo

Mega H-400GA - Foundation and Set-up

Default Icon
32 pages
Print Icon
To Next Page IconTo Next Page
To Next Page IconTo Next Page
To Previous Page IconTo Previous Page
To Previous Page IconTo Previous Page
Loading...
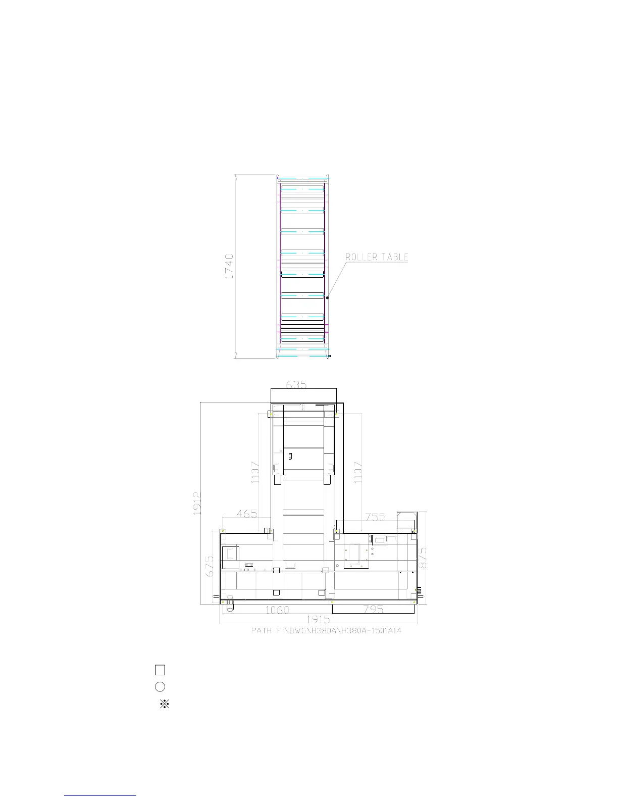
3.2 Foundation layout and set-up :
3.2.1 Foundation :
The foundation should be constructed of reinforced concrete and must be level and flat. After
the proper leveling position has been obtained , anchor the machine with anchor bolts.
The position of anchor bolts and floor dimensions are shown in fig 4:
Fig. 4
Contact portion with floor
Position of anchor bolts
All leveling bolts should support the weight of the machine evenly .
4

Related product manuals