EasyManua.ls Logo

Meyer's VB750 - To Convert Standard Non Flow Controlled Closed Center System to Open Center; To Convert Optional on Board Flow Controlled Closed Center System to Open Center

Default Icon
60 pages
Print Icon
To Next Page IconTo Next Page
To Next Page IconTo Next Page
To Previous Page IconTo Previous Page
To Previous Page IconTo Previous Page
Loading...
NOTICE! For tractors with closed center system and
load sensing that has a priority flow circuit that is man-
ually adjustable, your spreader must have the optional
on board flow control and it must be converted to an
open center system. This is not a tractor lever oper-
ated system.
To Convert Standard
Non Flow Controlled Closed
Center System To Open Center
See figure 3 for instructions in suggested numbered
sequence.
A new elbow fitting is required, see page 52 for part
numbers.
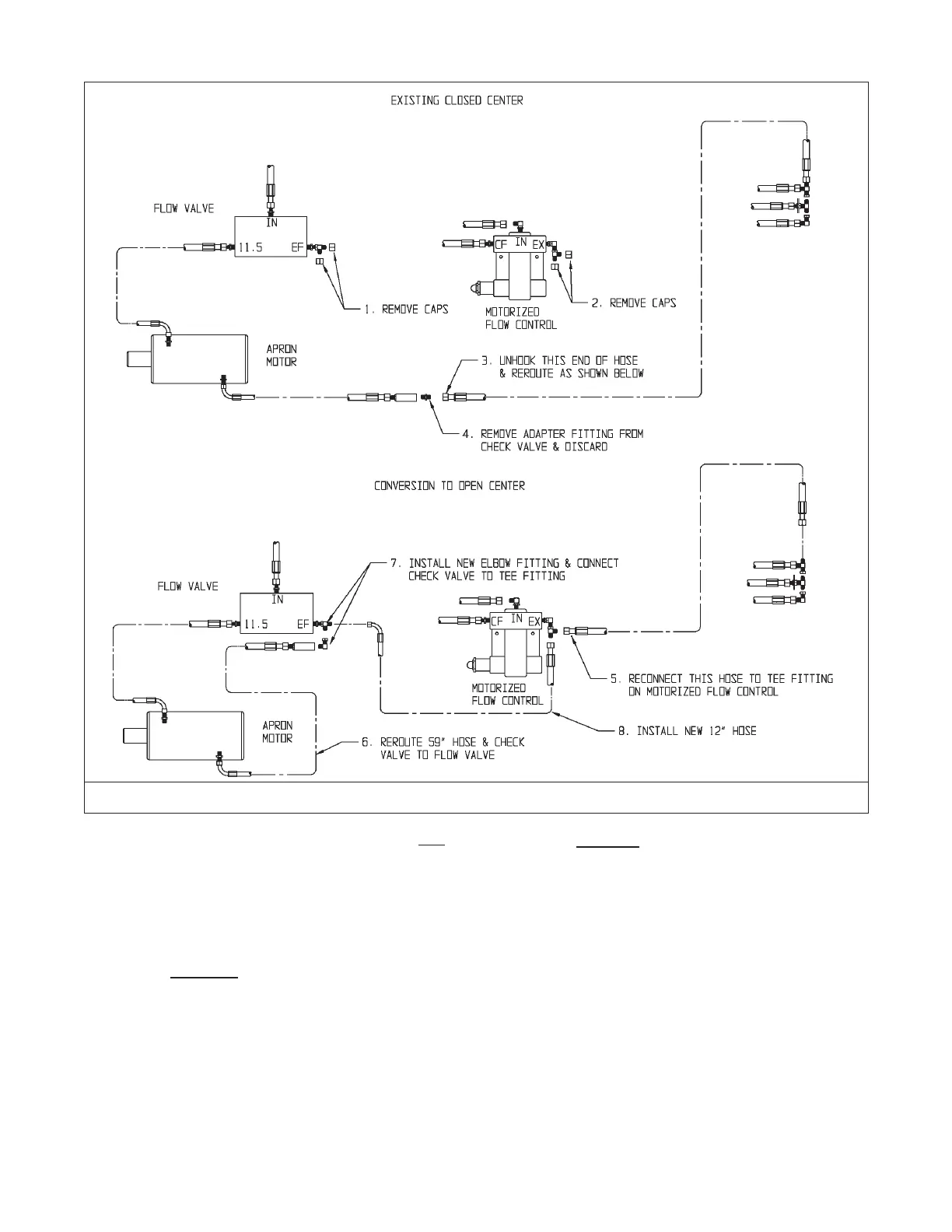
To Convert Optional
On Board Flow Controlled
Closed Center System To Open Center
See figure 4 for instructions in suggested numbered
sequence.
A new elbow fitting and 12” are required, see page 54
for part numbers.
MODEL: VB750 Page 14
FIGURE 4. TO CONVERT ON BOARD FLOW CONTROLLED CLOSED CENTER SYSTEM TO OPEN CENTER

Table of Contents

Related product manuals