EasyManua.ls Logo

Midea C Series - Midea 50 Hz AC Fan Coil Unit Two-Pipe Wall-Mounted Series MCAC-UTSM; Wiring Diagrams

Midea C Series
57 pages
Print Icon
To Next Page IconTo Next Page
To Next Page IconTo Next Page
To Previous Page IconTo Previous Page
To Previous Page IconTo Previous Page
Loading...
Midea 50Hz AC Fan Coil Unit Two-pipe Wall-mounted Series MCAC-UTSM-201606
- 11 -
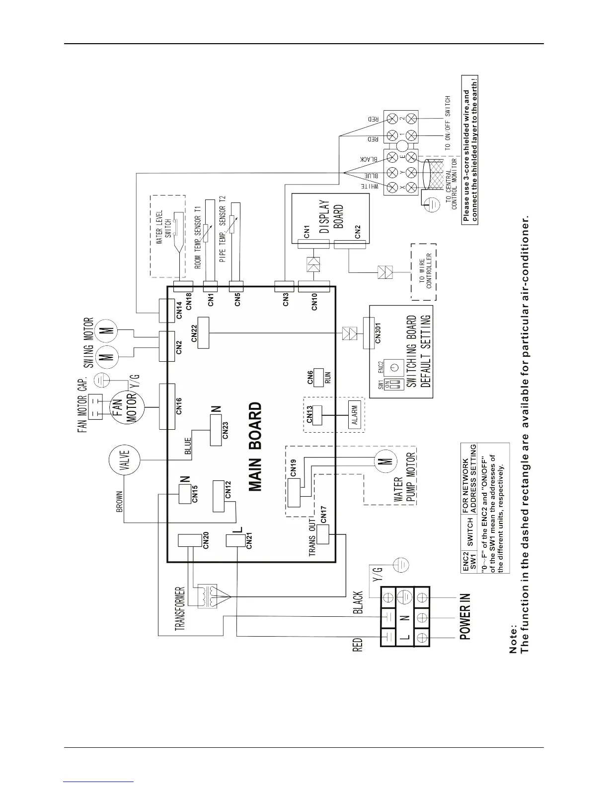
9. Wiring Diagrams

Table of Contents

Related product manuals