EasyManua.ls Logo

Midea MGBT-F120W/RN1 - Mgbt-F180 W;Rn1

Midea MGBT-F120W/RN1
213 pages
Print Icon
To Next Page IconTo Next Page
To Next Page IconTo Next Page
To Previous Page IconTo Previous Page
To Previous Page IconTo Previous Page
Loading...
Aqua tempo power series tropical air-cooled scroll chiller 50Hz MCAC-ATSM-2014-09
46
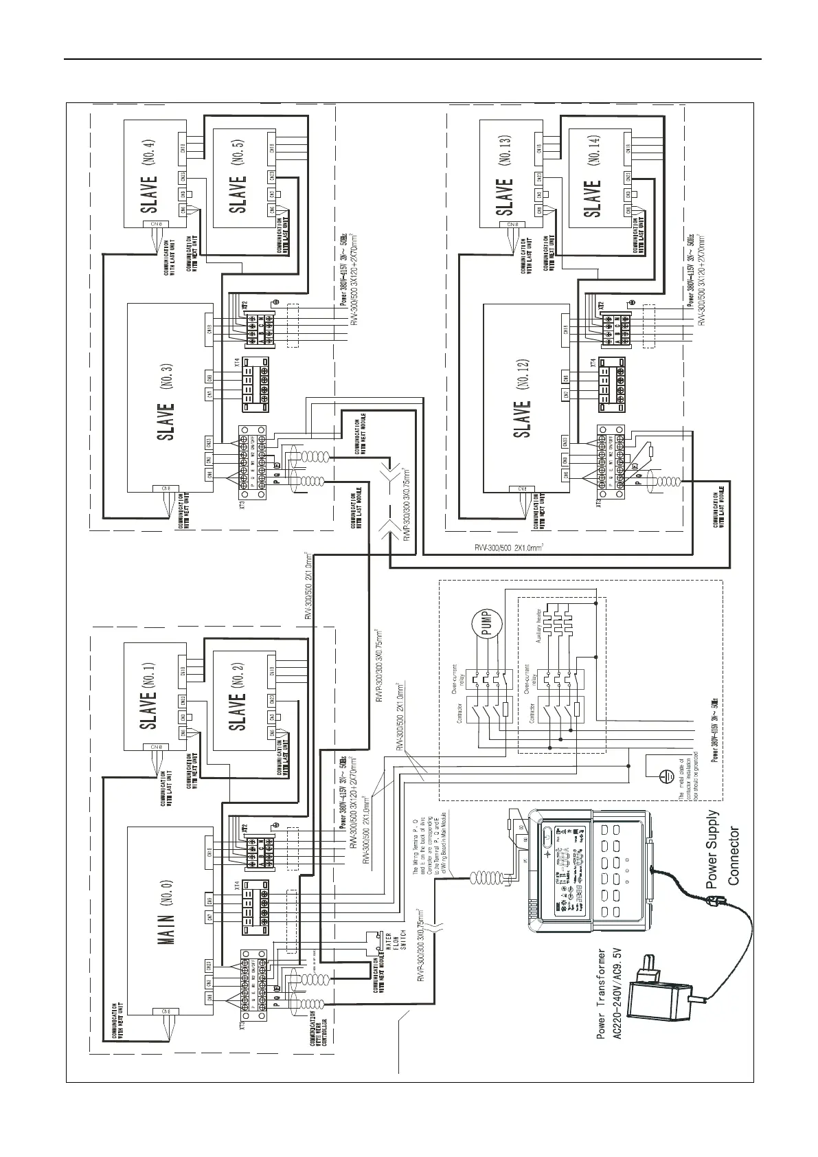
5.5MGBT-F180W/RN1
Attached Drawing (II) Networking Communication Schematic of Main Unit and
Auxiliary Unit
A B
C
N
H 2 P 1 P 2H1
120Ω
W 1
W 2
H 2 P 1 P 2H1
W 1
W 2
H2 P 1 P2H1
W 1
W 2
The l e ngth of w i re
sho uld b e shorter
tha n 5 00m
100Ω
Black
Yellow
Gray
Query
Fault
Notes
The wiring diag ram of auxiliary heater and
pum p i s just for reference ,p lea se follow the
instructions o f correspond ing aux iliary
heater products.
Please cho ose suc h acc essory as power
wire , switch of auxiliary heater acco rding to
the actual paramete r of products and national
TO T IM ER
ON / OF F
BL U E
RE D
B LU E
R ED
B LU E
R ED

Table of Contents

Related product manuals