EasyManua.ls Logo

Midea MGBT-F25W/DN1 - Outlook Drawing: MGBT-F180 W;DN1

Midea MGBT-F25W/DN1
180 pages
Print Icon
To Next Page IconTo Next Page
To Next Page IconTo Next Page
To Previous Page IconTo Previous Page
To Previous Page IconTo Previous Page
Loading...
R410a tropical air-cooled scroll chiller unit 60Hz MCAC-ATSM-2014-09
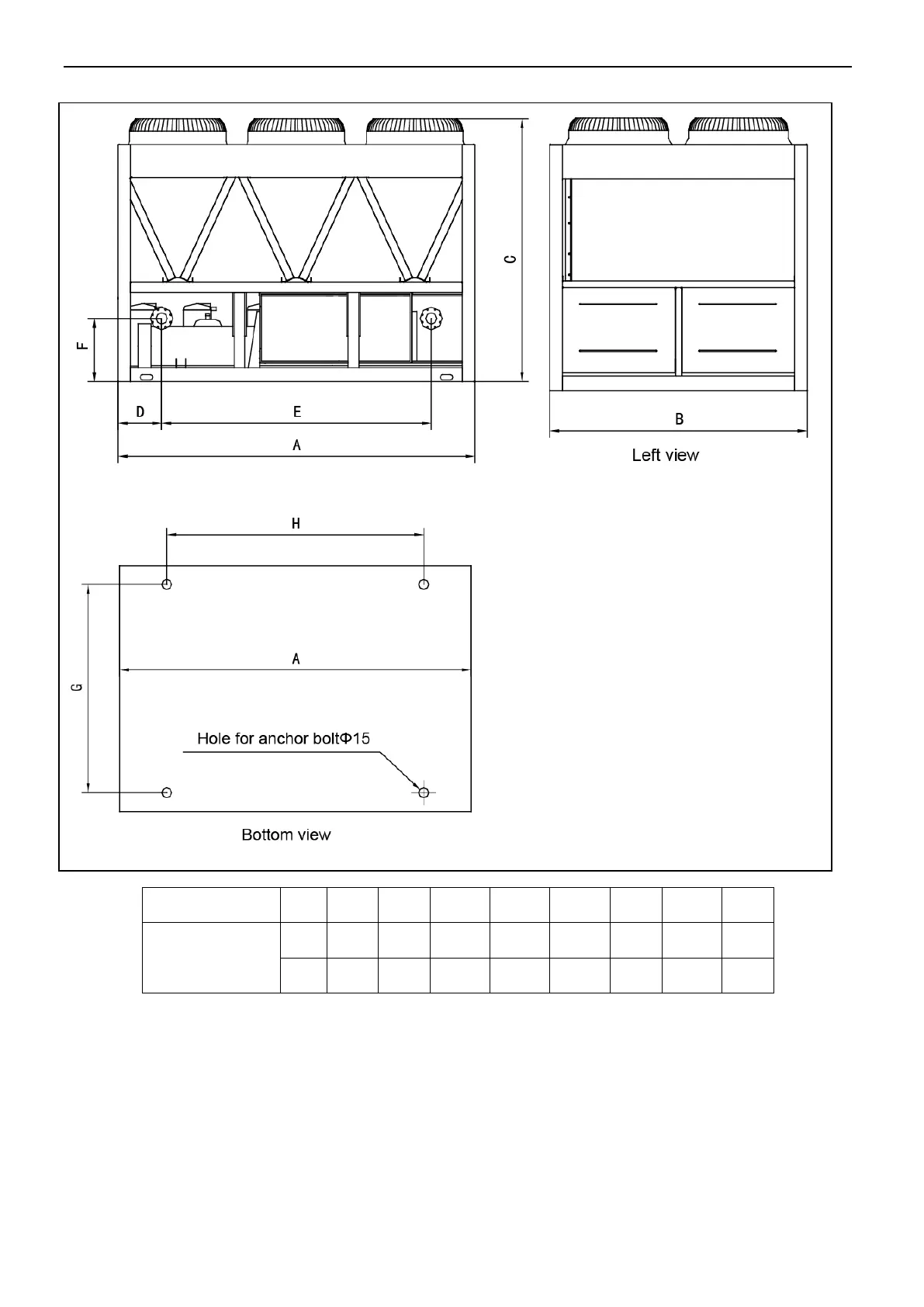
1.14 Outlook drawing: MGBT-F180W/DN1
Front view
Model
unit
A
B
C
D
E
F
G
H
MGBT-F180W/DN1
Mm
2850
2000
2110
3470
2156
506
1888
2388
inch
112.2
78.74
83.07
136.61
84.88
19.92
74.33
94.02

Table of Contents

Related product manuals