EasyManua.ls Logo

Midea V4 Plus - Page 176

Midea V4 Plus
225 pages
Print Icon
To Next Page IconTo Next Page
To Next Page IconTo Next Page
To Previous Page IconTo Previous Page
To Previous Page IconTo Previous Page
Loading...
R410A DC Inverter VRF V4 Plus W Series 50Hz MCAC-VTSM-2016-04
174 Installation
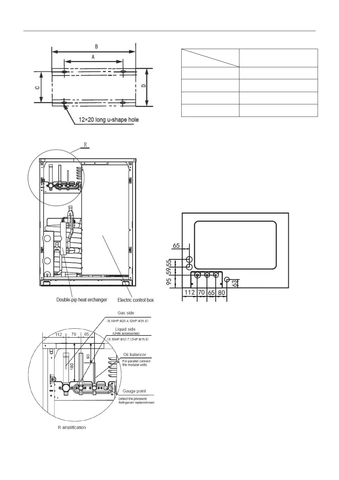
Position illustration of screw bolt (Unit: mm) (Unit: mm)
Centering position illustration of each connective pipe (Unit: mm)
HP
SIZE
8,10,12
A
650
B
780
C
518
D
550

Related product manuals