EasyManua.ls Logo

Midea V6-i Series - 20;22;24 HP Piping Diagram

Midea V6-i Series
130 pages
Print Icon
To Next Page IconTo Next Page
To Next Page IconTo Next Page
To Previous Page IconTo Previous Page
To Previous Page IconTo Previous Page
Loading...
V6-i VRF 50/60Hz
18
Midea V6-i Series Service Manual
20/22/24HP
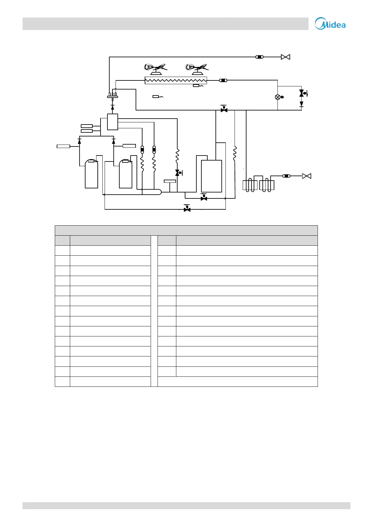
Figure 2-2.3: 20/22/24HP piping diagram
Legend
No.
Parts name
No.
Parts name
1
Compressor
15
Accumulator
2
Discharge temperature switch
T3
Heat exchanger temperature sensor
3
High pressure switch
T4
Outdoor ambient temperature sensor
4
High pressure sensor
T6A
Plate heat exchanger inlet temperature sensor
5
Oil separator
T6B
Plate heat exchanger outlet temperature sensor
6
Four-way valve
T7C1
Compressor A discharge temperature sensor
7
Heat exchanger
T7C2
Compressor B discharge temperature sensor
8
Electronic expansion valve (EXV)
SV4
Oil return valve
9
Low pressure switch
SV5
Fast defrosting (in heating) and unloading (in cooling) valve
10
Fan motor
SV6
Refrigerant bypass EXV valve
11
Fan
SV8A
Compressor A vapor injection valve
12
Stop valve (liquid side)
SV8B
Compressor B vapor injection valve
13
Stop valve (gas side)
SV9
Compressor B pressure balance valve
14
Plate heat exchanger
7
1
1
15
12
9
3
4
5
6
11
11
10 10
8
13
EXVA
E
S
C
SV9
SV4
SV5
SV6
SV2
T3
T4
2
T7C1
T7C2
2

Table of Contents

Other manuals for Midea V6-i Series

Related product manuals