EasyManua.ls Logo

Minster IOI - To Adjust Slide Ball Box Clearance; Crossbar Knockout Adjustment

Default Icon
92 pages
Print Icon
To Next Page IconTo Next Page
To Next Page IconTo Next Page
To Previous Page IconTo Previous Page
To Previous Page IconTo Previous Page
Loading...
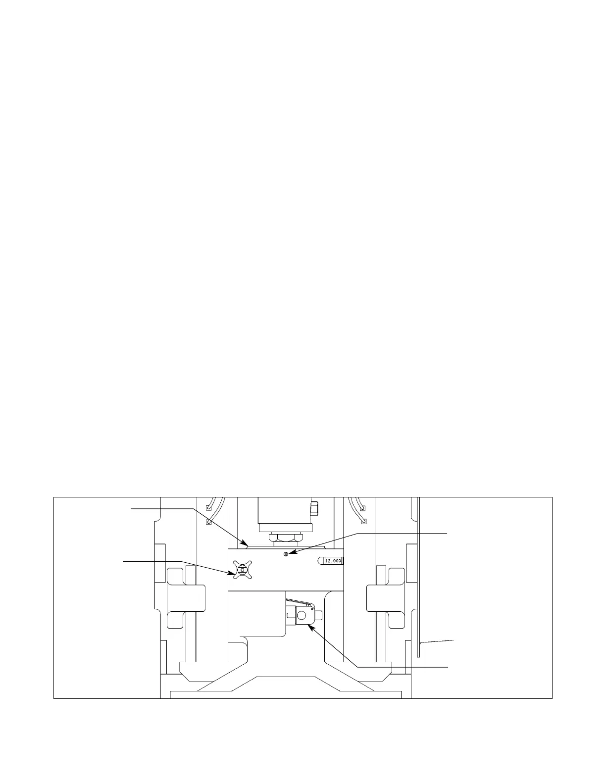
To Adjust Slide Ball Box Clearance:
NOTE: Instructions are provided for adjustment of
both the manual type slide adjustment and
motorized type slide adjustment mechanisms.
(See Figure 7F.) Follow the procedures appli-
cable to the slide arrangement furnished.
1. Perform Steps 1 through 8 under “To Check Slide
Ball Box Clearance.”
2. Loosen the set screw on the front of the slide.
3. Tighten the adjusting screw following Steps A or B
below (as applicable).
(A) Manual Slide Adjustment: Using a spanner
wrench, turn the adjusting nut in the clockwise
direction until it’s tight, then back off the adjust-
ment slightly (approximately 3 to 5 degrees.)
(B)
Motorized Slide Adjustment: Pull out the
worm shaft locking knob and turn it one-quarter
turn to disengage the locking mechanism. Actu-
ate the slide adjustment motor (either up or
down), using care not to exceed the shutheight
adjustment limits. While the slide adjustment
motor is running, turn the adjusting nut with a
spanner wrench in the clockwise direction until
the slide adjustment motor begins to slow, then
back off the adjustment slightly (approximately 3
to 5 degrees) to allow slide adjustment motor to
return to normal speed. Turn off slide adjustment
motor and engage the locking mechanism.
4. Tighten set screw.
5. Manual Slide Adjustment Only: Make certain that
ball box has not been tightened excessively by the
loosening the connection screw clamp plug and
turning the connection screw in through one full rev-
olution. If excessive force is required to turn the
screw, loosen the set screw and back off the adjust-
ing nut a small amount. Retighten the set screw and
then recheck the force required to turn the connec-
tion screw.
6. Recheck the ball box clearance, following the pro-
cedure above. Ball box clearance should now be
.0005” to .001” (0.012 to 0.025 mm). Readjust ball
box clearance if necessary.
NOTE: If ball box adjustment is too tight, heat will
build up in the ball box area during opera-
tion. Should the temperature in the ball box
area exceed 100
o
F. (37.8
o
C.), loosen the
adjusting nut slightly.
7. After adjusting the ball box clearance, adjust the
(optional) shutheight indicator. (See “Calibration Of
The Shutheight Indicator,” page F-5.)
CROSSBAR KNOCKOUT
ADJUSTMENT
(Ref. Figure 8F)
Model 101 OBI/OBS Series presses may be equipped
with an optional crossbar knockout. The knockout bars
run from left-to-right through the center of the slide
(See Figure 8F.)
Knockout rods are clamped in position by cap screws
in knockout brackets. The knockout brackets are
attached to the press frame. Movement of the slide on
the upstroke allows the knockout bar to contact knock-
out rods which force the bar down against the cus-
tomer-installed knockout pin (or pins).
If a jam should occur, the knockout rod will slip inside
the bracket. Therefore, damage to knockout parts, or
die, will be greatly reduced.
F - 8
Adjusting Nut
Worm Shaft
Locking Knob
Set Screw
Slide Adjust Motor
Figure 7F. Setting ball box clearance (motorized adjust shown.)

Table of Contents

Related product manuals