EasyManua.ls Logo

Mitsubishi MR-J4-70A - Page 348

Mitsubishi MR-J4-70A
640 pages
Print Icon
To Next Page IconTo Next Page
To Next Page IconTo Next Page
To Previous Page IconTo Previous Page
To Previous Page IconTo Previous Page
Loading...
11. OPTIONS AND AUXILIARY EQUIPMENT
11 - 17
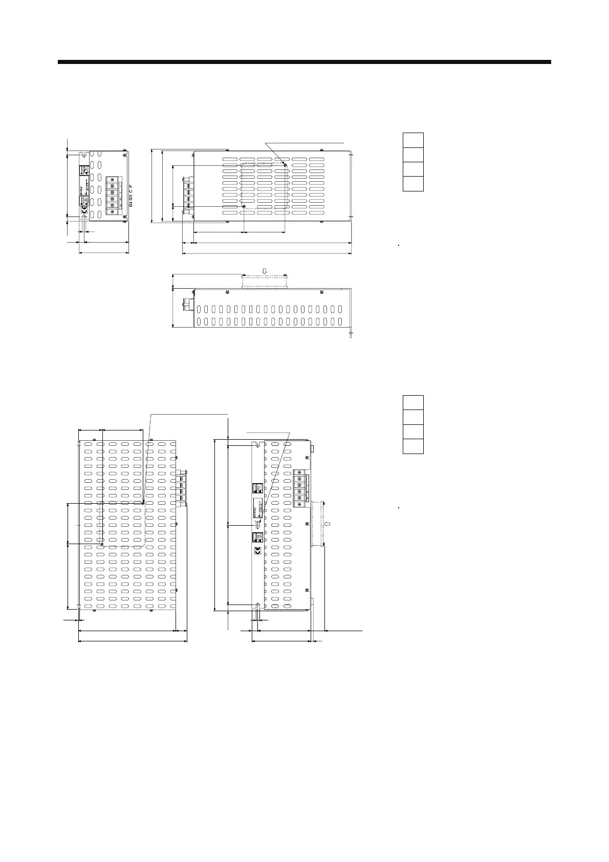
(2) MR-RB30/MR-RB31/MR-RB32/MR-RB3N/MR-RB34-4/MR-RB3M-4/MR-RB3G-4/MR-RB3U-4
[Unit: mm]
8.5125
150
Approx. 30
142
79
82.530
8.5
10
90
101.5 82.5
318
17
335
Air intake
7
100
Cooling fan mounting
screw (2-M4 screw)
Terminal block
P
C
G3
G4
Terminal screw size: M4
Tightening torque: 1.2 [N•m]
Mounting screw
Screw size: M5
Tightening torque: 5.4 [N•m]
Mass: 2.9 [kg]
(3) MR-RB50/MR-RB51/MR-RB5N/MR-RB54-4/MR-RB5G-4/MR-RB5U-4
[Unit: mm]
2.3
133 82.5
49 82.5
Cooling fan mounting
screw (2-M3 screw)
On opposite side
200 17
217 8120
108
12
12.5
162.5
350
162.5
12.5
7
Approx. 30
7 × 14
slotted hole
Air
intake
Terminal block
P
C
G3
G4
Terminal screw size: M4
Tightening torque: 1.2 [N•m]
Mounting screw
Screw size: M5
Tightening torque: 5.4 [N•m]
Mass: 5.6 [kg]

Table of Contents

Related product manuals