EasyManua.ls Logo

Mitsubishi MR-J4-70A - Page 349

Mitsubishi MR-J4-70A
640 pages
Print Icon
To Next Page IconTo Next Page
To Next Page IconTo Next Page
To Previous Page IconTo Previous Page
To Previous Page IconTo Previous Page
Loading...
11. OPTIONS AND AUXILIARY EQUIPMENT
11 - 18
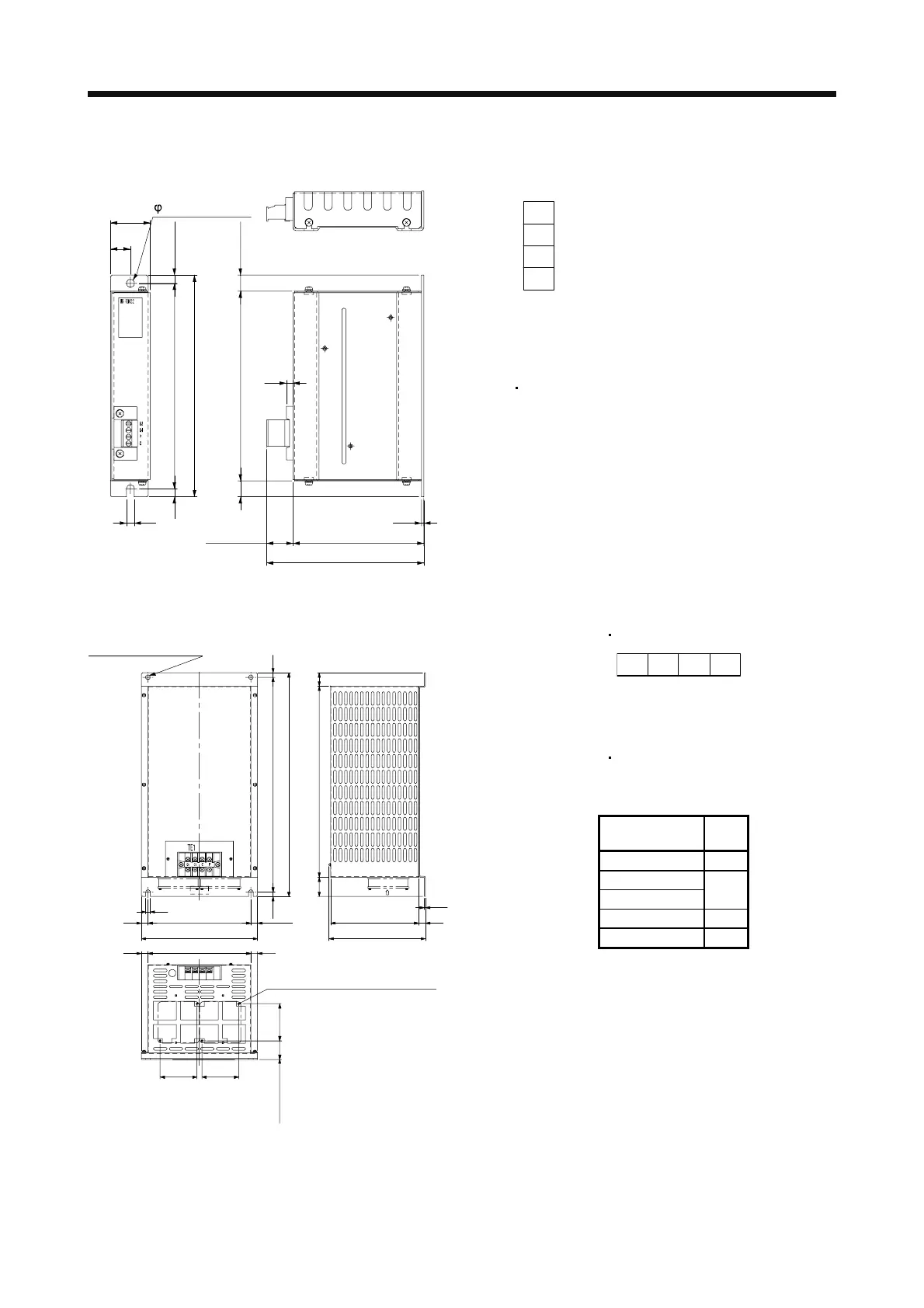
(4) MR-RB032
[Unit: mm]
T
E1
30
15
99
1.6
119
14412
156
168
6
6
5
Approx. 6
Approx. 12
Approx. 20
6 mounting hole
TE1 terminal block
G3
G4
P
C
Applicable wire size: 0.2 mm
2
to 2.5 mm
2
(AWG 24 to 12)
Tightening torque: 0.5 to 0.6 [N•m]
Mounting screw
Screw size: M5
Tightening torque: 3.24 [N•m]
Mass: 0.5 [kg]
(5) MR-RB5R/MR-RB9F/MR-RB9T/MR-RB5K-4/MR-RB6K-4
Terminal block
PCG3G4
Terminal screw size: M5
Tightening torque: 2.0 [N•m]
Mounting screw
Screw size: M8
Tightening torque: 13.2 [N•m]
Regenerative
option
Mass
[kg]
MR-RB5R 10
MR-RB9F
MR-RB9T
11
MR-RB5K-4 10
MR-RB6K-4 11
[Unit: mm]
480
10
260
230
10
2-φ10 mounting hole
500
30427
43
197
15
2.3
Cooling fan intake
215
15
23015
10
15 15
82.5
82.582.5
Approx. 42
Screw for mounting cooling fan
4-M3 screw

Table of Contents

Related product manuals