EasyManua.ls Logo

Mitsubishi PLA-A12BA - Page 20

Mitsubishi PLA-A12BA
100 pages
Print Icon
To Next Page IconTo Next Page
To Next Page IconTo Next Page
To Previous Page IconTo Previous Page
To Previous Page IconTo Previous Page
Loading...
20
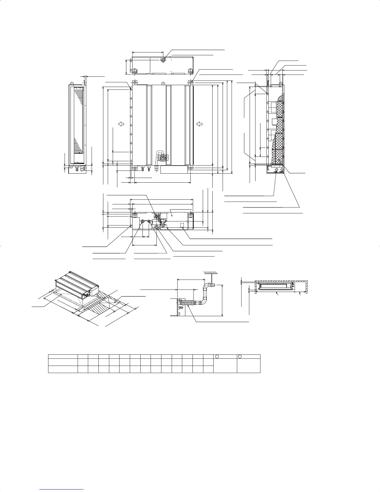
PEA-A12AA PEA-A18AA Unit: mm (inch)
(46-7/8)
1190
(39)
990
N
(48-25/32)
1239
(40-29/32)
1039
M
ø12.7(1/2)
mm(in.)
(35-7/16)
(27-9/16)
(41-3/4)
(33-7/8)
(47-1/4)
(39-3/8)
(39-3/8)
(31-1/2)
(41-3/4)
(33-7/8)
(47-3/16)
(39-5/16)
(45-3/8)
(37-1/2)
(43-5/16)
(35-7/16)
ø6.35(1/4)
900 952 998 860
9
800 1000 860
7
700
20
24
L
900
K
9
J
1060
HG
1200
F
1000
E
11
D
1060
C
1100
B
1152
PEA-A12AA
PEA-A18AA
Model A
1198
Gas pipe Liquid pipe
1
2
Note1.Use M10 screw for the suspension bolt (field supply).
2.Keep the service space for the maintenance at the bottom.
3.This chart indicates for PEA-A12AA model,which has 2 fans.
PEA-A18AA models have 4 fans.
4.In case an inlet duct is used,remove the air filter(supply with
the unit), then install the filter(field supply) at suction side.
Drain pipe(O.D.ø32(1-1/4))
Terminal block (Remote controller transmission line)
Terminal block (Indoor/outdoor connecting line)
2
Refrigerant piping
flare connection (liquid)
Drain pipe(O.D.ø32(1-1/4))
(Emergency draining)
Knockout hole
ø
27(1-3/32)
(Remote controller transmission line)
Knockout hole
ø
27(1-3/32)
(Indoor/outdoor connecting line)
L-ø2.9(1/8)
2X2-ø2.9(1/8)
2XE-ø2.9(1/8)
Control box
Air filter
Suspension bolt hole
4-14X30(9/16X1-3/16) Slot
Refrigerant piping
flare connection (gas)
1
Drain pipe(O.D.ø32(1-1/4))
(Spontaneous draining)
Air
inlet
Air
outlet
N
M
57(2-1/4)
57(2-1/4)
159(6-9/32)
345(13-19/32)
(3-9/16)
(5-29/32)
(2-25/32)(4-19/32)
70
10 (13/32)
(3-15/16)
(1-15/16) (24-5/8)
37(1-15/32)
200(7-7/8)
H
20(13/16)
157.5 (6-7/32)
20 (13/16)
100 (3-15/16)
37(1-15/32)
12(1/2)
12(1/2)
88(3-15/32)
100(3-15/16)XJ=K
100(3-15/16)
88(3-15/32)
10 (13/32)
49
25 (1)
170(6-23/32)
102(4-1/32)
270(10-21/32)
116
150(Duct)
23(29/32)
100
25(1)
700(27-9/16)
677(26-21/32)
23 (29/32)
C
B (Suspension bolt pitch)23(29/32)
A
90
625 (Suspension bolt pitch)
D (Duct)
30(1-3/16)
100(3-15/16)X(E-1)=F
100(3-15/16)
20(13/16)
15(19/32)
(1-31/32 ~ 5-29/32)
(30-19/32)
(17-23/32)
(11-13/16)
(17-23/32)
More than 300
450
777
50
(1-31/32)
50 ~ 150
50(1-31/32)
G
450
Note2
Access door
Required space for service and maintenance
More than 20
More than 10
(13/16)
(13/32)
Access door
Ceiling surface
Make the access door at the appointed position
properly for service maintenance.
175±5(6-29/32±7/32)
Less than 300
Less than 550
(11-13/16)
(21-21/32)
Drain hose (I.D.ø32(1-1/4))
<accessory>
(Actual length)
DOCS1415revA.indd20DOCS1415revA.indd20 10.8.254:09:21PM10.8.254:09:21PM

Related product manuals