EasyManua.ls Logo

Mitsubishi PLA-A12BA - Outlines and Dimensions; Indoor Unit Dimensions

Mitsubishi PLA-A12BA
100 pages
Print Icon
To Next Page IconTo Next Page
To Next Page IconTo Next Page
To Previous Page IconTo Previous Page
To Previous Page IconTo Previous Page
Loading...
15
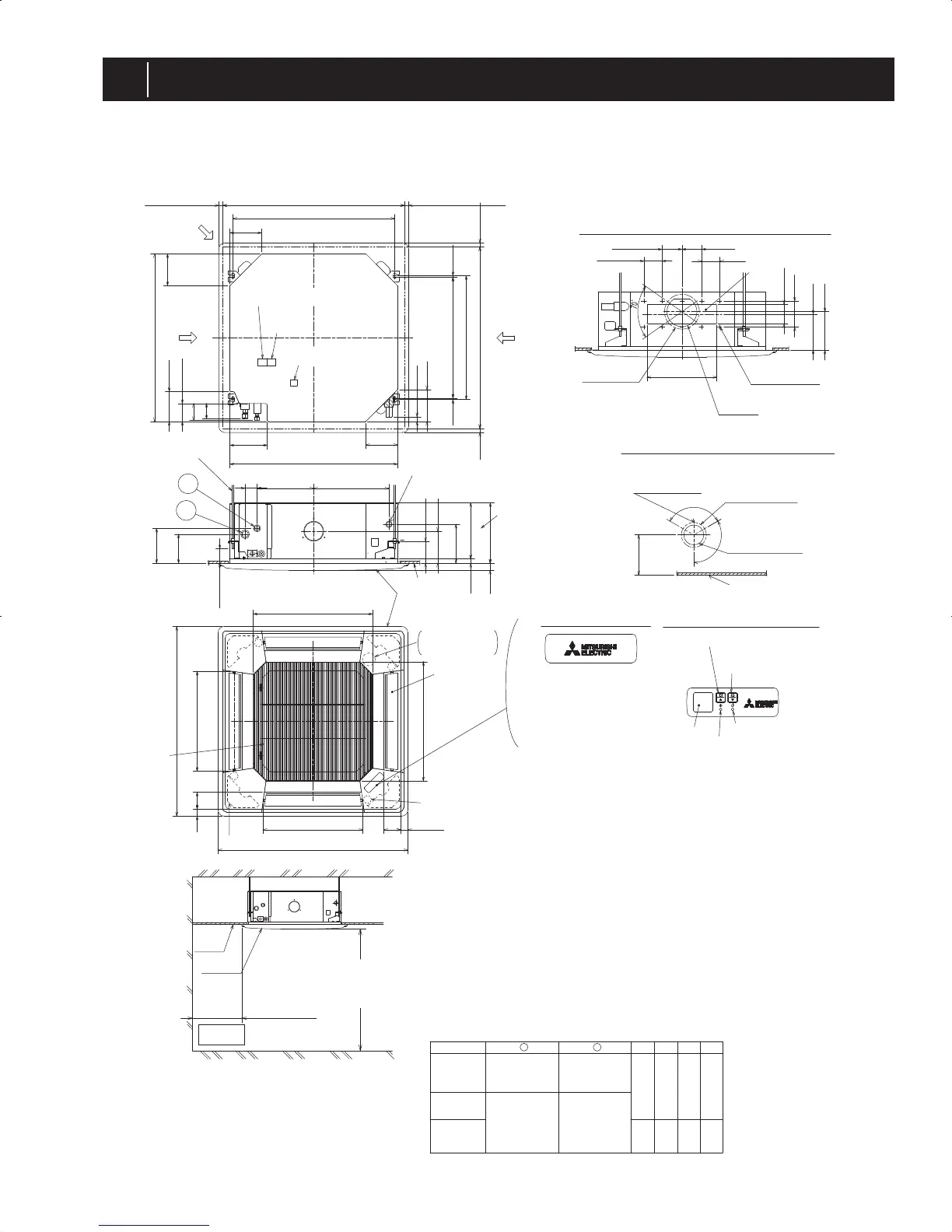
INDOOR UNIT
PLA-A12BA PLA-A18BA PLA-A24BA PLA-A30BA PLA-A36BA PLA-A42BA
3
OUTLINES AND DIMENSIONS
Unit: inch (mm)
14-27/3211-3/16
2-3/8
+5
0
(7.5)
(160)
(500)
(950)
Floor
Min.94-1/2(2400)
from floor
Entire
periphery
(36)
(83)
(83)
(36)
(500)
(950)
(597)
(597)
( 158)
(
[
175)
(350)
(
[
150)
(14-
[
2.8)
(167)
(155)
(130)
(100)
(90)
(90)
(100)
(100)
(35)
(17 )
+3/16
0
(190)
(156)
(105)
(50~70)
(140)
(170)
(377)
(284)
(60)
(24)
(187.5)
(840)
(160)
(160)
(20~45)
to 1-25/32
(860~910)
(620)
(605 )
-
3/16
+1-3/8
-
5
+35
(90)
(150)
(160)
(7.5)
(20
~45)
1-25/32
Corner pocket
In case of wireless remote controller
In case of standard grille
Drain hole
Drain pump clean hole
and Drain emergency
drainage hole
For MA-Remote controller
terminal block
Emergency operation switch<Cooling>
Emergency operation
switch<Heating>
Indoor unit
Ceiling
Cut out hole
Burring hole pitch
3-
[
1/8(3-
[
2.8)
Burring hole
Detail drawing of fresh air intake hole
Burring hole
14-
[
1/8
Cut out hole
Burring hole pitch
Cut out hole
Detail connecting of branch duct(Both aspects)
(77)
3-1/32
(85)
3-11/32
(298)
11-3/4
11-1/16
(281)
(74)(80)(258)(241)
2-29/32
3-5/32
10-3/16
PLA-A36BA
PLA-A42BA
PLA-A24BA
PLA-A30BA
9-1/2
DCBA
2
Refrigerant pipe
····
[
15.88mm
Flared connection
····5/8
Refrigerant pipe
····
[
12.7mm
Flared connection
····1/2
1
Refrigerant pipe
····
[
6.35mm
Flared connection
····1/4
Refrigerant pipe
····
[
9.52mm
Flared connection
····3/8
Models
PLA-A12BA
PLA-A18BA
Min.19-11/16(500)
Grille
Ceiling
Suspension bolt
lower edge
Vane motor
Air intake grille
Air outlet hole
Air outlet hole
Auto vane
(Air outlet)
Air intake hole
Air intake hole
Grille
Ceiling
Keep 25/64(10)to 19/32(15)
between unit ceiling
and ceiling slab.
)(
Connected the attached
flexible pipe or socket.
Drain pipe
connected to VP-25
Suspension bolt
M10 or W3/8
Branch duct hole
Fresh air
intake hole
Branch duct
hole
Ceiling hole
Suspension bolt pitch
Suspension bolt pitch
Ceiling hole
(5/16)(5/16)
23-13/16
24-13/32
DEFROST/STAND BY lamp
Receiver
Operation lamp
For wiring replacement kit
terminal block
6-5/16
6-5/16
1
2
3-15/16
5-1/8
13-25/32
3-17/32
3-15/16
3-15/16
3-17/32
6-9/16
6-3/32
[
5-29/32
[
6-7/8
19-11/16
19-11/16
23-1/2
M
M
M
M
3-17/64
1-27/64
37-3/8
3-17/64
1-27/64
37-3/8
23-1/2
1-15/16~2-3/4
5-1/2
6-11/16
1-3/8
11/16
4-1/8
6-9/64
7-15/32
A
B
6-5/16
33-1/16(840)
5-29/32
3-17/32
C
D
33-1/16
7-3/8
25/32 to 1-25/32(20~45)
25/32 to 1-25/32(20~45)
33-27/32 to 35-13/16(860~910)
31-7/8(810)
25/32 to
33-27/32 to 35-13/1625/32
15/16
6-5/16
Indoor unit/Outdoor unit
connecting terminal block
[
4-29/32(
[
125)
[
3-15/16(
[
100)
6-7/32
120°
120°
ww
w
ww
w
w
w
w
w
Note1. As for drain pipe, please use VP-25(O.D.1-1/4(32mm) PVC TUBE).
Drain pump is included.
Max. lifting height is 33-7/16(850mm) from the ceiling.
2. As for suspension bolt, please use M10 or W3/8.
(Procured at local site)
3. Electrical box may be removed for the service purpose.
Make sure to slack the electrical wire little bit for
control/power wires connection.
4. The height of the indoor unit can be adjusted
with the grille attached.
5. For the installation of the optional high efficiency filter
or optional multi-functional casement.
1) Add 5-5/16(135mm) to the dimensions w marked on the figure.
2) Optional high efficiency filter must be used jointly with optional
multi-functional casement.
6. When installing the branch ducts, be sure to insulate adequately.
Otherwise condensation and dripping may occur.
(It becomes the cause of dew drops/water dew.)
7. As for necessary installation/service space, please refer to the
left figure.
DOCS1415revA.indd15DOCS1415revA.indd15 10.8.254:09:19PM10.8.254:09:19PM

Related product manuals