EasyManua.ls Logo

Mitsubishi PLA-A12BA - Page 40

Mitsubishi PLA-A12BA
100 pages
Print Icon
To Next Page IconTo Next Page
To Next Page IconTo Next Page
To Previous Page IconTo Previous Page
To Previous Page IconTo Previous Page
Loading...
40
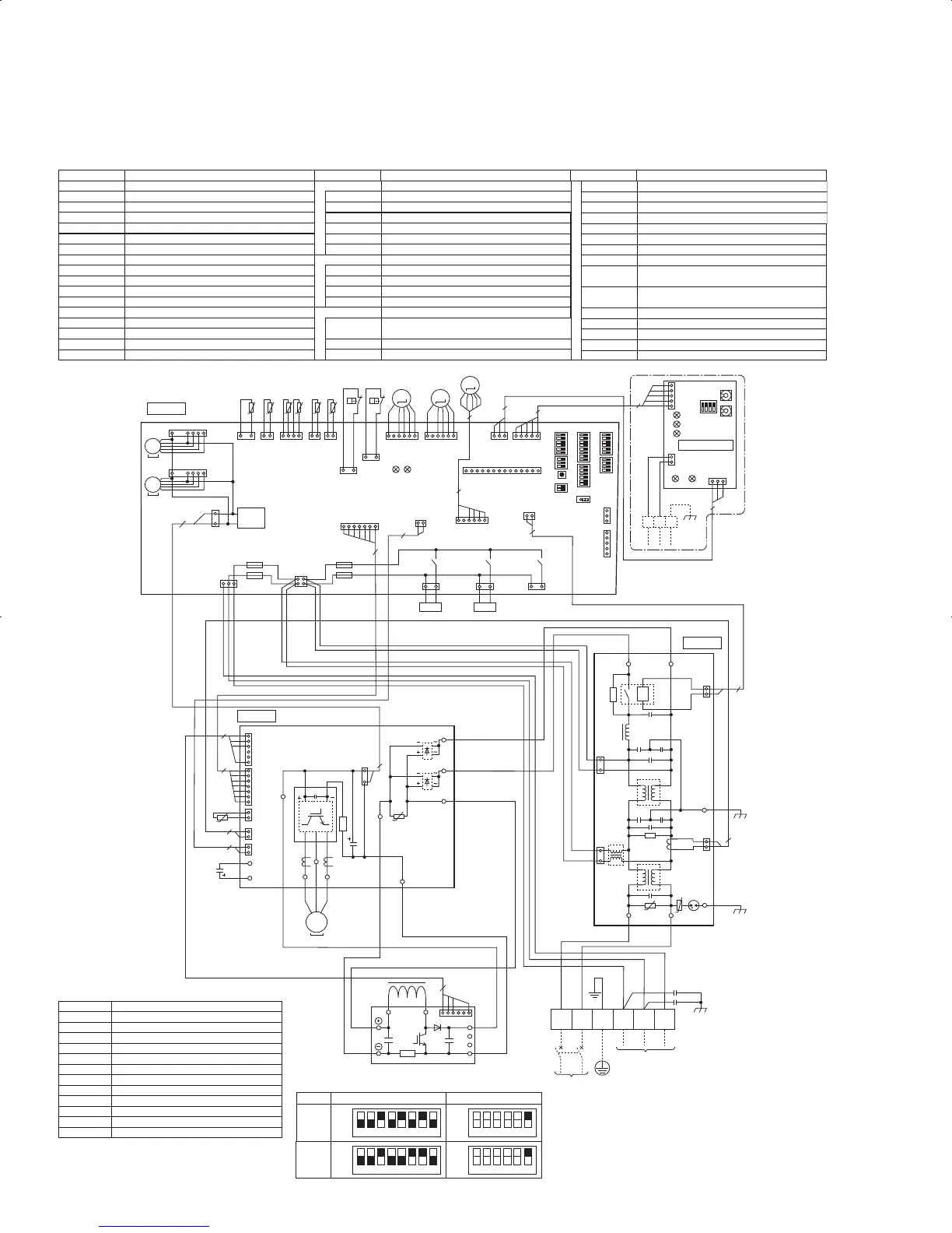
PUZ-HA30NHA2 PUZ-HA36NHA2
12345678
MODEL SW6
w1MODEL SELECT
w
2. SW5 -1 to 5 : Function Switch
SW5-6
w
2
OFF
ON
30N
OFF
ON
123456
TB1
MC
MF1, MF2
21S4
63H
TH3,TH32,TH33
TH4
TH6
TH7
TH8
LEV-A, LEV-B,LEV-C
DCL
Terminal Block<Power Supply, Indoor/Outdoor >
Motor for Compressor
Fan Motor
Solenoid Valve (Four-Way Valve)
High Pressure Switch
SV
63L Low Pressure Switch
Solenoid Valve (Bypass Valve)
Thermistor<Outdoor Pipe>
TABU/V/W
TABS/T
Connection Terminal<U/V/W-Phase>
Thermistor<Discharge>
Thermistor<Outdoor 2-Phase Pipe>
Thermistor<Outdoor>
Thermistor<Heatsink>
Electronic Expansion Valve
Reactor
Connection Terminal <L/N-Phase>
P.B.
Power Circuit Board
ACTM
Active Filter Module
CB
Main Smoothing Capacitor
CY1, CY2
Capacitor
Diode Bridge
Noise Filter Circuit Board
Connection Terminal<L-Phase>
Connection Terminal<Ground>
52C Relay
N.F.
LI / LO
Connection Terminal<N-Phase>
NI / NO
EI, E2
Controller Circuit Board
C.B.
DS2, DS3
52C
Power Module
IPM
SYMBOL
NAME
[LEGEND]
SYMBOL NAME SYMBOL NAME
Connection Terminal<DC Voltage>
TABP1/P2/P
Connection Terminal<DC Voltage>
TABN1/N2/N
Switch<Forced Defrost, Defect History Record
Reset, Refrigerant Address>
Switch<Test Operation>
Switch<Function Switch>
SW1
SW4
SW5
Switch<Function Setup>
Switch<Model Select>
SW7
SW6
Switch<Function Setup>
SW8
Switch
SW9
Switch<Pump Down>
SWP
Connector<Emergency Operation>
CN31
LED1,LED2
F1~F4
LED<Operation Inspection Indicators>
CNM
CNMNT
CNVMNT
CNDM
Connector<A-Control Service Inspection Kit>
Connector
<Connected to Optional M-NET Adapter Board>
Connector
<Connected to Optional M-NET Adapter Board>
Connector < Connected for Option (Contact Input)>
Fuse
<
T6.3AL250V
>
X51,X52,X55
Relay
SS
Connector<Connection for Option>
SYMBOL
M-NET ADAPTER
NAME
TB7
CN5
CND
CN2M
SW1
SW11
SW12
LED1
LED2
LED3
LED4
LED5
Terminal Block<M-net connection>
Connector<Transmission>
Connector<Power Supply>
Connector<M-NET communication>
Switch<Status of communication>
Switch<Address setting : 1s digit>
Switch<Address setting : 10s digit>
LED<Power Supply : DC5V>
LED<Connection to Outdoor Unit>
LED<Transmission : Sending>
LED<Transmission : Recelving>
LED<Power Supply : DC12V>
CN5
(WHT)
31
LED2
SW1
SW11
SW12
LED3
LED4
TB7
LED1
LED5
2
1
CND
(WHT)
CN2M
(WHT)
M-NET ADAPTER
M-NET
ABS
When M-NET adapter is connected
CNVMNT
(WHT)
31
CNDM
(WHT)
CN51
(WHT)
1
3
1
5
CNMNT
(WHT)
CNM
(WHT)
51
LEV-A
(WHT)
LEV-A
C. B.
LEV-B
(RED)
LEV-B
6
3
5
5
1
TH7/6
(RED)
63H
(YLW)
TRANS
X55
X51
TH3
(WHT
)
CNDC
(PNK)
CNF1
(WHT)
CNF2
(WHT)
TH4
(WHT
)
TH7 TH6 TH3 TH4
4121
TH32
(BLK
)
TH32
2
t
°
121
SW7
SW6SW1
SW9
CN31
141
MF1
MF2
MS
3~
MM
MS
3~
7
1
CN2
(WHT)
CNS
(WHT)
CNAC
(WHT)
CN4
(WHT)
SV2
(BLU)
SS
(WHT)
21S4
(GRN)
21
LED1
LED2
X52
F1
F2
F4
F3
w
1
w
1
21
43
SW5SW8SW4 SWP
IPM
MS
3~
U
V
W
SV21S4
61
31
7
1
3
1
2
31
71
LEV-C
(BLU)
6
1
7
2
TH33
(YLW
)
TH33
3
t
°
1
t
°
t
°
t
°
t
°
13 13 13
CN52C
(RED)
2
2
1
TABN
TABP
CN3
(WHT)
CNAF
(WHT)
CN2
(WHT)
CN4
(WHT)
CN5
(RED)
TH8
CB
1
4
1
7
7
1
2
1
2
1
2
2
2
3
2
6
RED
RED
TABP2
WHT
WHT
t
°
P. B.
CNDC
(PNK)
TABU
TABV
TABW
BLK
WHT
DS2
DS3
U
TABT
TABS
TABP1
TABN1
BLK
1
TABN2
WHT
WHT
BLU
BLU
RED
U
CY1
CY2
LI NI
LO NO
EI
E2
U
POWER SUPPLY
208/230V 60Hz
INDOOR
UNIT
TB1
L1 L2 GR S1 S2 S3
N. F.
MC
1
2
2
3
1
3
1
1
2
2
CN5
(RED)
RED
RED
CNAC1
(WHT)
CNAC2
(RED)
CN52C
(BLK)
52C
BLU
DCL
ACTM
L1
L2
N2
N1
P
Io
RED
BLK
RED
WHT
WHT
BLK
61
4
BLU
YLW
GRN
ORN
BRN
63H
63L
(RED)
31
63L
LEV-C
M
5
3
5
1
RED
5
w
Use copper supply wires.
BLK
BLK
12345678
OFF
ON
36N
OFF
ON
123456
CN51
Connector < Connected for Option (Signal output)>
DOCS1415revA.indd40DOCS1415revA.indd40 10.8.254:09:27PM10.8.254:09:27PM

Related product manuals