EasyManua.ls Logo

Mitsubishi S6R2 Series

Mitsubishi S6R2 Series
318 pages
To Next Page IconTo Next Page
To Next Page IconTo Next Page
To Previous Page IconTo Previous Page
To Previous Page IconTo Previous Page
Loading...
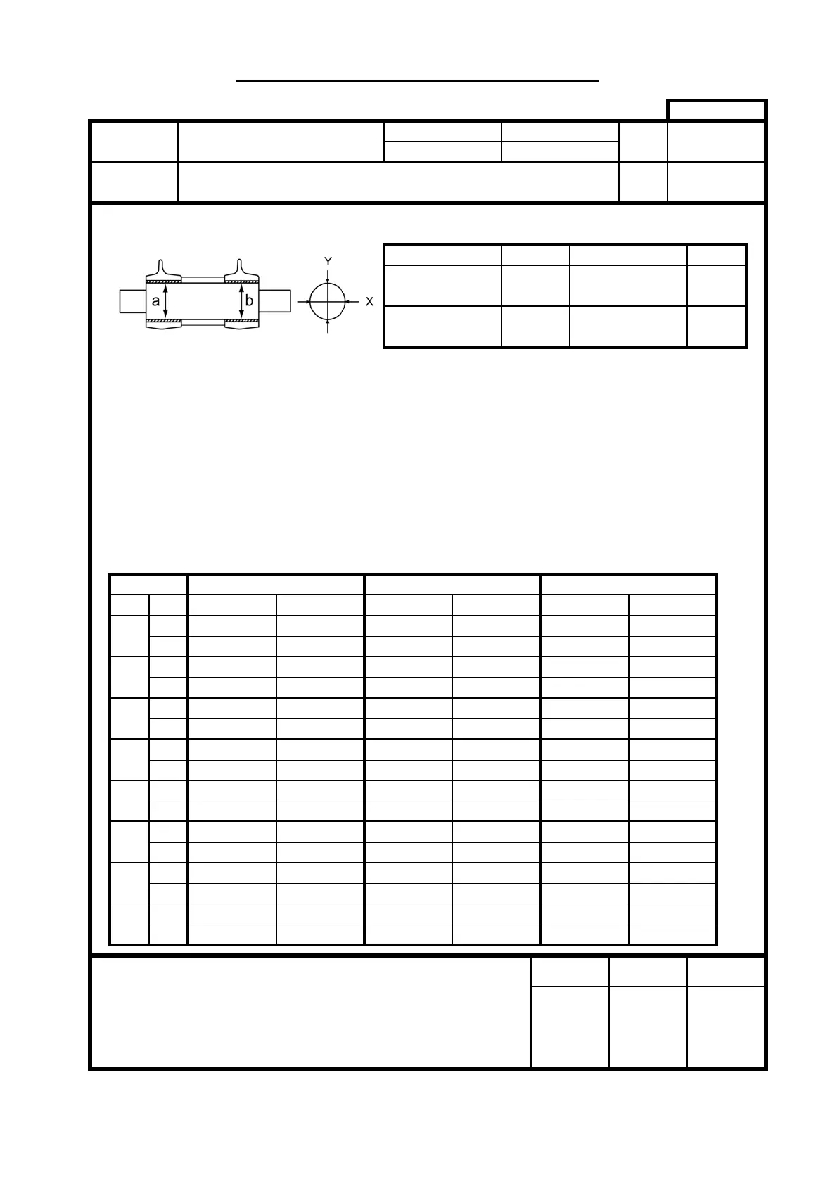
INSPECTION RECORD SHEET
No. 7(1/2
SR
Customer Date
Engine Model
Serial No.
Item
Rocker bushing inside diameter and rocker shaft outside
diameter - measure (1/2)
Unit mm[in.]
No.
Directio
n
Rocker shaft outside diameter
Measured value
YYX
LimitStandard
ClearanceItem
Rocker bushing inside diameter
36.000 to 36.040
[1.4173 to 1.4189]
35.966 to 35.991
[1.4160 to 1.4170]
Rocker shaft
outside diameter
Rocker bushing
inside diameter
φ36
[1.42]
a
a
3
4
b
1
2
b
b
b
Maximum Minimum
a
X
b
a
a
7
8
b
a
5
6
b
a
b
a
Remark
Measuring location
Item to be measured
Nominal
Standard
Measured byApproved by Checked by
35.940
[1.4150]
φ36
[1.42]
36.09
[1.4209]

Table of Contents

Related product manuals