EasyManua.ls Logo

Mitsubishi SRK35ZS-S

Mitsubishi SRK35ZS-S
335 pages
To Next Page IconTo Next Page
To Next Page IconTo Next Page
To Previous Page IconTo Previous Page
To Previous Page IconTo Previous Page
Loading...
-
12
-
'16 • SCM-T-199
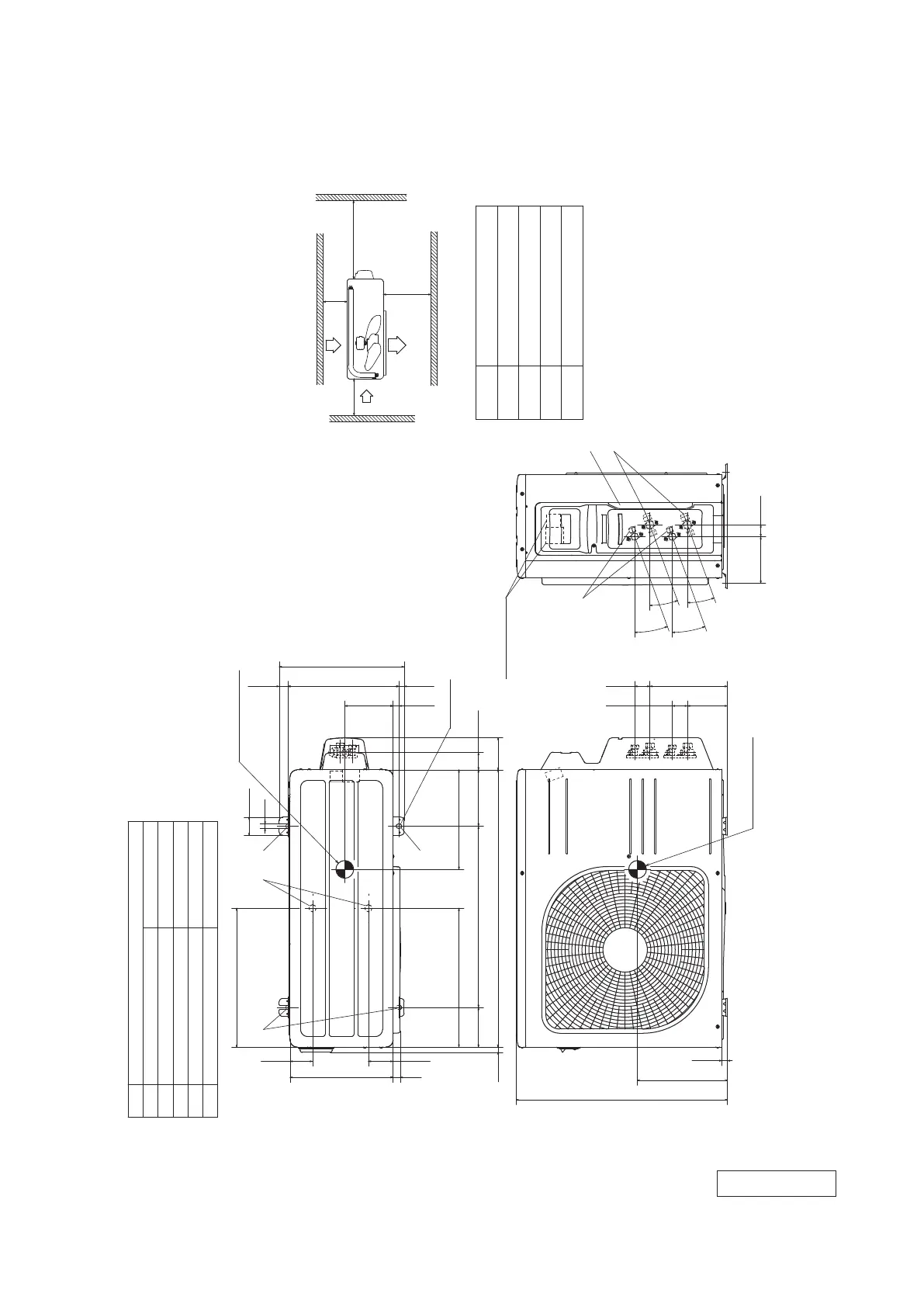
1.2 Exterior dimensions
Models SCM40ZS-S, 45ZS-S
Minimum installation space
Terminal block
Center of gravity
Center of gravity
Unit:mm
15.8
595
112.5 42.7
218.2 42.7
390.6
63.469.4
290
390.6
111.6 510 158.4 48.9
90780
351.6
14.8 312.5 24.3
12
50.6
131.2 33.5
20°
20°
20°
20°
2-12x16
Slot hole
L2
Inlet
Outlet
Inlet
L3
L1
Service
space
(
    
)
L4
L2
L3
L4
L1
100 or more
80 or more
250 or more
280 or more
Installation space
φ9.5238")( Flare
Content
C Pipecable draw-out hole
D
E Anchor bolt hole
Drain discharge hole
Symbol
B
A Service valve connectiongas side
M10-12×4 places
φ20×2 places
Service valve connectionliquid side
φ6.3514")( Flare
280
136
253
16.4
20
14.6
Notes
1 The unit must not be surrounded by walls on the four sides.
2 The unit must be fixed with anchor bolts. An anchor bolt must not
protrude more than 15mm.
3 If the unit is installed in the location where there is a possibility of
strong winds, place the unit such that the direction of air from the
outlet gets perpendicular to the wind direction.
4 Leave 200mm or more space above the unit.
5 The wall height on the outlet side should be 1200mm or less.
6 The model name label is attached on the right side of the unit.
D
B
A
C
E
E
E
RWC000Z293

Table of Contents

Other manuals for Mitsubishi SRK35ZS-S

Related product manuals