EasyManua.ls Logo

Mitsubishi SRK35ZS-S

Mitsubishi SRK35ZS-S
335 pages
To Next Page IconTo Next Page
To Next Page IconTo Next Page
To Previous Page IconTo Previous Page
To Previous Page IconTo Previous Page
Loading...
-
14
-
'16 • SCM-T-199
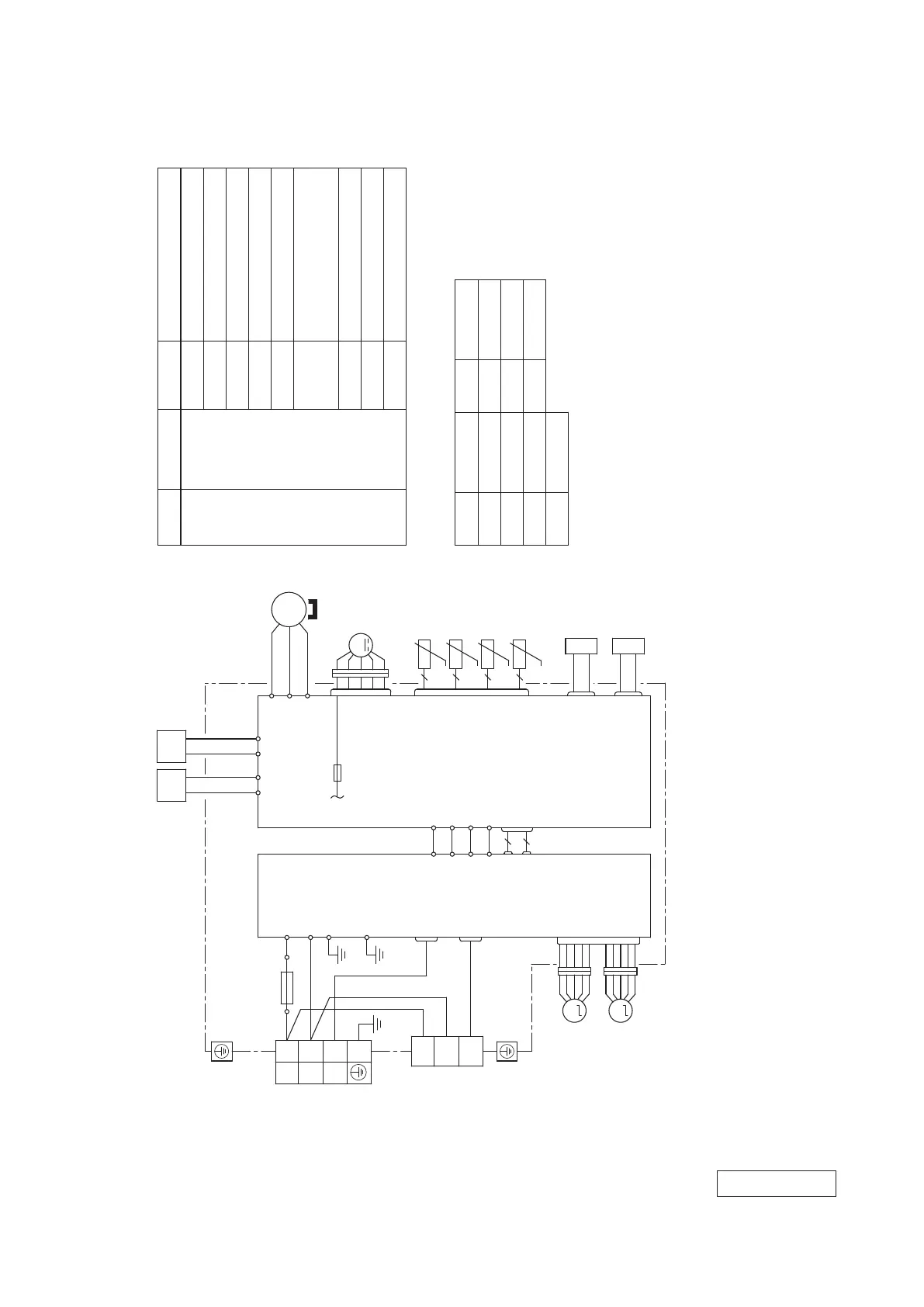
1.3 Electrical wiring
Models SCM40ZS-S, 45ZS-S
UNIT A
R.IN
L
N
1
3
2
POWER
250V 15A
FUSE
SOURCE
1
3
2
BK
WH
BR
BK
WH
RD
YG
BK
WH
EEV
CNEEV1
A
M
WH
CNA
CNB
M
FMo
t
CNTH
Tho-S
2
Tho-D
Tho-A
Tho-R
CN20S
20S
HEATER
CNHEAT
T2
T1
L
YE
YE
T12
T11
L
BL
BL
S-1
R-1
S-2
BK
WH
WH
S-1
CNSUB
CNMAIN
S
O
R
O
C-2
RD
C-1
CN20V
S.IN
G1
G2
PCB 2
SUB
PCB 1MAIN
RD
WH
t
t
t
F4
UNIT B
T 1A L 250V
F3
CNFAN
YG
YG
RD
BR
EEV
B
M
RD
EEV A,EEV B
L
Compressor motor
Electric expansion valvecoil
Reactor
Tho-A
Tho-D
Heat exchanger sensor
Outdoor air temp. sensor
Discharge pipe temp. sensor
CM
Tho-R
Connector
20S
4 Way valvecoil
Suction pipe temp. sensor
Tho-S
FMo
Fan motor
outdoor unit
BK
BR
Black
Brown
BL
YE
Blue
Yellow
RD YG
Red
YellowGreen
WH
White
BLOCK 1
2
2
2
CN20V
CNSUB
CNFAN
CNA
CNB
CNEEV1
CNMAIN
CNTH
CN20S
CNHEAT
FUSE
3
2
BLOCK 2
TERMINAL
TERMINAL
BK
WH
RD
CM
MS
3
W
V
U
Item Description
Item Description
Mark
Color marks
Meaning of marks
Color Mark Color
RWC000Z294

Table of Contents

Other manuals for Mitsubishi SRK35ZS-S

Related product manuals