EasyManua.ls Logo

Mitsubishi SRK35ZS-S

Mitsubishi SRK35ZS-S
335 pages
To Next Page IconTo Next Page
To Next Page IconTo Next Page
To Previous Page IconTo Previous Page
To Previous Page IconTo Previous Page
Loading...
-
48
-
'16 • SCM-T-199
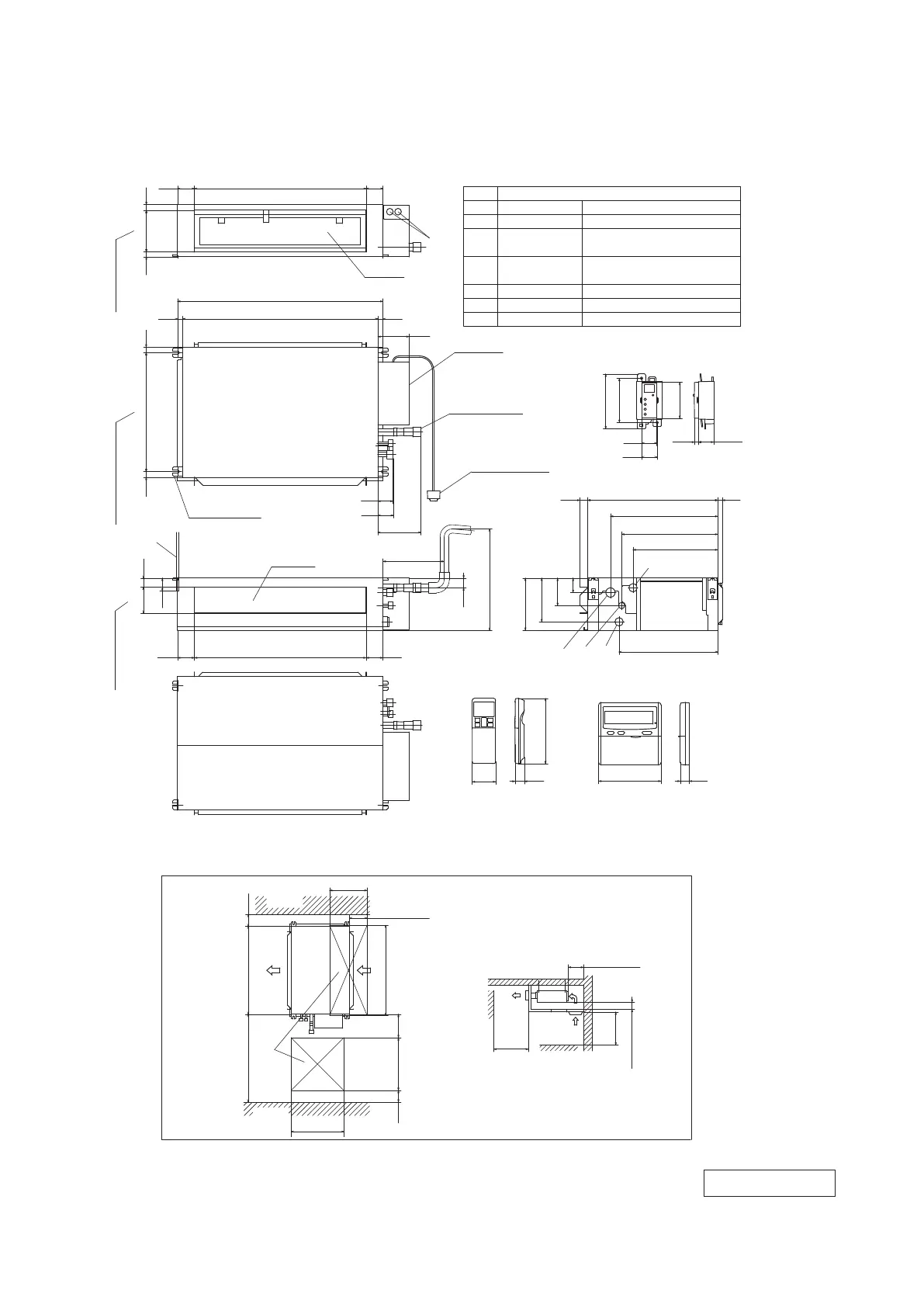
(3) Ceiling concealed type (SRR)
Models SRR25ZM-S, 35ZM-S
750
790Suspension bolts pitch
45722 21
500
380
168
105
200
30
326
413
55
660Outlet dimension
59
58
165
120
37
99 35
65 65
2020
370
Suspension bolts pitch
Outlet dimension
600 or less
Max. drain lift
50
235 265
□120 19
660
Inlet dimension
160 21
65 65
19
Inlet dimension
Air Inlet
16
60
24
167
29.57.5
28
68.7
85
101
30
Control box
suspension bolt
Hanger plate for
Air outlet
Connector
Accessory
Installed on site
F
Inspection hole
450X450,320X770
A
Gas piping
B
Liquid piping
C1
Drain piping
D
Hole for wiring
E
Suspension bolts
M10
Symbol
Content
φ6.3514"Flare
φ9.5238"Flare
Drain piping
C2
Gravity drainage
VP25I.D.25 , O.D.32
Used with attached connector
VP25I.D.25 , O.D.32
Used with attached connector
φ25 x 2
Unit:mm
Wired remote control
Option
Wireless remote control
Remote control signal receiver
Remote control
signal receiver
Cord length 1.8m
Notes1The model name label is attached
  on the lid of the control box.
2It takes the interface kit SC-BIKN-E
     to connect the wired remote control.
100
450
450
750
200100
750
150 or more
770
or more
or more
100 or more
1000
1000
150 or more
320
Obstacle
View from top side of the unit
Obstacle
Obstacle
Rear-intake
Ceiling-return type
Space for installation and service
F
E
C
2
D
A
C
1
B
RJJ000Z001

Table of Contents

Other manuals for Mitsubishi SRK35ZS-S

Related product manuals