EasyManua.ls Logo

Mitsubishi SRK35ZS-S

Mitsubishi SRK35ZS-S
335 pages
To Next Page IconTo Next Page
To Next Page IconTo Next Page
To Previous Page IconTo Previous Page
To Previous Page IconTo Previous Page
Loading...
-
218
-
'16 • SCM-T-199
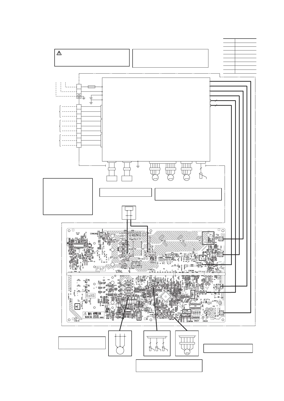
Inspection power transistor
Remove the fasten terminal and test
output voltage
Inspection of resistance value of sensor
Remove the connector and check the resistance value.
See the section of sensor characteristics on page
209.
BK
WH
RD
V WU
FMo
CM
CNTH
CNFAN
M
3
M
T2
T1
L
OR
YE
2 2 2
t
t
t
Tho-R Tho-A Tho-D
S
R
SNSUB
S-2
C-2
CN20V
Model SCM50ZS-S
Inspection of resistance value of sensor
Remove the connector and check the resistance value.
See the section of sensor characteristics on page XX .
UNIT A
UNIT B
UNIT C
Power source
1 Phase
AC220-240V 50Hz
EEV A
BK
WH
WH
S-1
CNMAIN
S
IN
R
IN
BK
WH
S
O
R
O
250V 15A/
FUSE
CN20S
G2
Y/G
RD
C-1
CN20V
5
2
G1
Y/G
G
Y/G
CNEEV1
CNEEV3
CNTH
TB2
CNA
CNB
CNC
TB1
N
L
EEV B EEV C
Y/G
WH
BK
M
M
M
WH
RD
BL
PCB 2SUB
PCB 1MAIN
20S
HEATER
WH
RD
CNHEAT
250V 20A
3
2
1
BK
WH
RD
3
2
1
3
2
1
BK
WH
BR
BK
WH
BL
t
2
Tho-S
Color marks
Mark Color
BK
BR
Black
BL Blue
Brown
RD
YG
Red
YellowGreen
WH White
OR Orange
YE Yellow
Inspection of outdoor fan motor
See page 219.
CAUTION- HIGH VOLTAGE
High voltage is produced in the control box. Don't touch
electrical parts in the control box for 5 minutes after the
unit is stopped.
Power source and serial signal inspection
to : AC220/230/240V
to : Normal if the voltage oscillates between
DC0 and approx. 20V
Inspection of electronic expansion valve
See page 219.
Display Voltage range
Voltage check in PCB
The normal range is as follows.
DC280V DC230V - DC310V
DC220V DC218V - DC222V
DC213V DC212V - DC214V
DC215V DC214V - DC216V
DC225V DC224V - DC226V
DC 2.5V DC 2.3V - DC
2
2.5V

Table of Contents

Other manuals for Mitsubishi SRK35ZS-S

Related product manuals