EasyManua.ls Logo

Mitsubishi SRK35ZS-S

Mitsubishi SRK35ZS-S
335 pages
To Next Page IconTo Next Page
To Next Page IconTo Next Page
To Previous Page IconTo Previous Page
To Previous Page IconTo Previous Page
Loading...
-
54
-
'16 • SCM-T-199
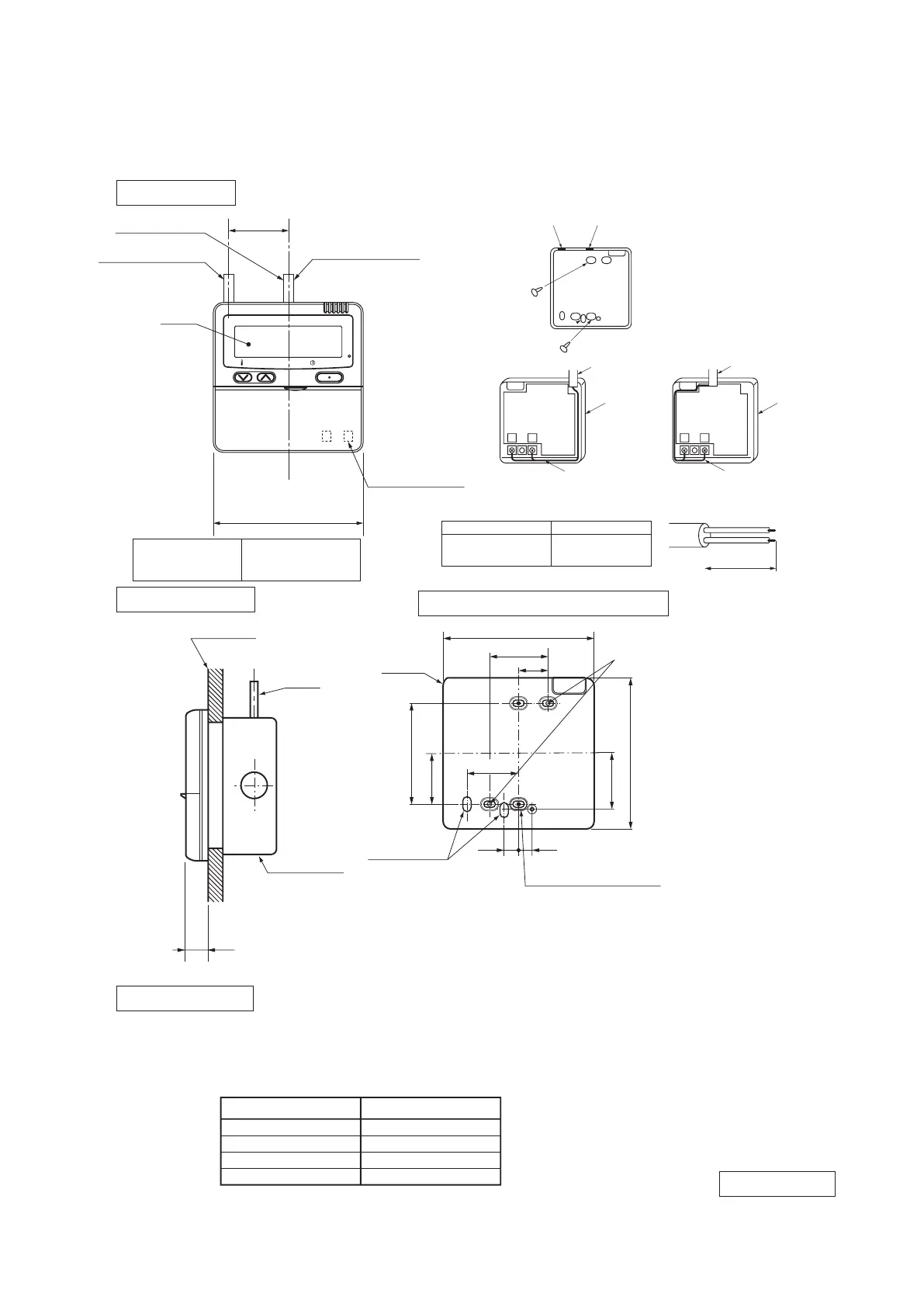
(b) Wired remote control (Option parts)
Interface kit (SC-BIKN-E) is required to use the wired remote control. (Models SRK, SKM, SRF and SRR only)
Model RC-E5
TEMP ON/OFF
48
ڧ120
L C D
Wall surface
Wiring
Electrical box
Not included
19
Wiring specifications
Exposed mounting
23
46
11.5 11
Remote
control
outline
120
45
83.5
42
120
Remote control installation dimensions
Wiring oulet
Installation hole
12×7 Slot hole
9.5×5 Slot hole 4places
1 Installation screw for remote control
M4 screw (2 pieces)
44
(1) If the prolongation is over 100m, change to the size below.
But, wiring in the remote control case should be under 0.5mm
2
. Change the wire size outside of
the case according to wire connecting. Waterproof treatment is necessary at the wire connecting
section. Be careful about contact failure.
Length Wiring thickness
100 to 200m
0.5mm
2
×2 cores
0.75mm
2
×2 cores
1.25mm
2
×2 cores
2.0mm
2
×2 cores
Under 300m
Under 400m
Under 600m
Upper part
Lower part
Lower case
Sheath
Upper cace
Board
Wiring
Upper
Lower
XY
Sheath
Upper cace
Board
Wiring
Upper
Lower
YX
Tighten the screws after
cutting off the thin part of
screw mounting part.
Embedded mounting
Exterior appearance
(Munsell color)
Pearl white
(N8.5) near equivalent
The peeling-off length of sheath
The peeling-off length
of sheath
In case of pulling out from
upper left
In case of pulling out
from upper left
In case of pulling out
from upper left
X wiring : 170mm
Y wiring : 190mm
Pulling out from center
X wiring : 215mm
Y wiring : 195mm
Pulling out from upper left
In case of pulling out from center
In case of pulling out
from center
In case of pulling out
from center
Wiring outlet
Cut off the upper thin part of remote control lower case with a nipper or knife,
and grind burrs with a file etc.
0.3mm
2
×2 cores.
X, Y Terminal block
Attach M3 screw
with washer
Unit:mm
PJZ000Z295

Table of Contents

Other manuals for Mitsubishi SRK35ZS-S

Related product manuals