EasyManua.ls Logo

Moffat G32 - Specifications

Moffat G32
75 pages
Print Icon
To Next Page IconTo Next Page
To Next Page IconTo Next Page
To Previous Page IconTo Previous Page
To Previous Page IconTo Previous Page
Loading...
-5-
Revision 5/F3528
GAS
110
70
50
WATER ENTRY
GAS ENTRY
290 220
875
205
800
ELECTRICAL ENTRY
MWS
E
GAS
1
710
E
1
MWS
150
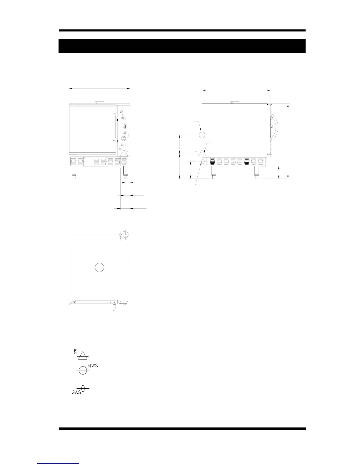
1. SPECIFICATIONS
MODEL: G32
LEGEND
- Electrical connection entry point
- Water entry - ¾” BSP hose connection
- Gas connection entry point - ½” BSP female (not USA / Canada)
- ½” NPT female (USA / Canada only)
Dimensions shown in millimetres.
Dimensions in inches shown in brackets.
FRONT SIDE
PLAN
(28.0)
710
50
(2.75)
70
110
800
(4.33)
(31.5)
875
(2.0)
(34.5)
150
(5.90)
220
(8.65)
290
(11.4)
205
(8.07)

Table of Contents

Related product manuals