EasyManua.ls Logo

Monessen Hearth CDV7 - Electronic Pilot Ignition Wiring; Optional Fan;Blower Systems

Monessen Hearth CDV7
68 pages
Print Icon
To Next Page IconTo Next Page
To Next Page IconTo Next Page
To Previous Page IconTo Previous Page
To Previous Page IconTo Previous Page
Loading...
CDVSC7 & CDV7 Series Gas Fireplace
69D3011
31


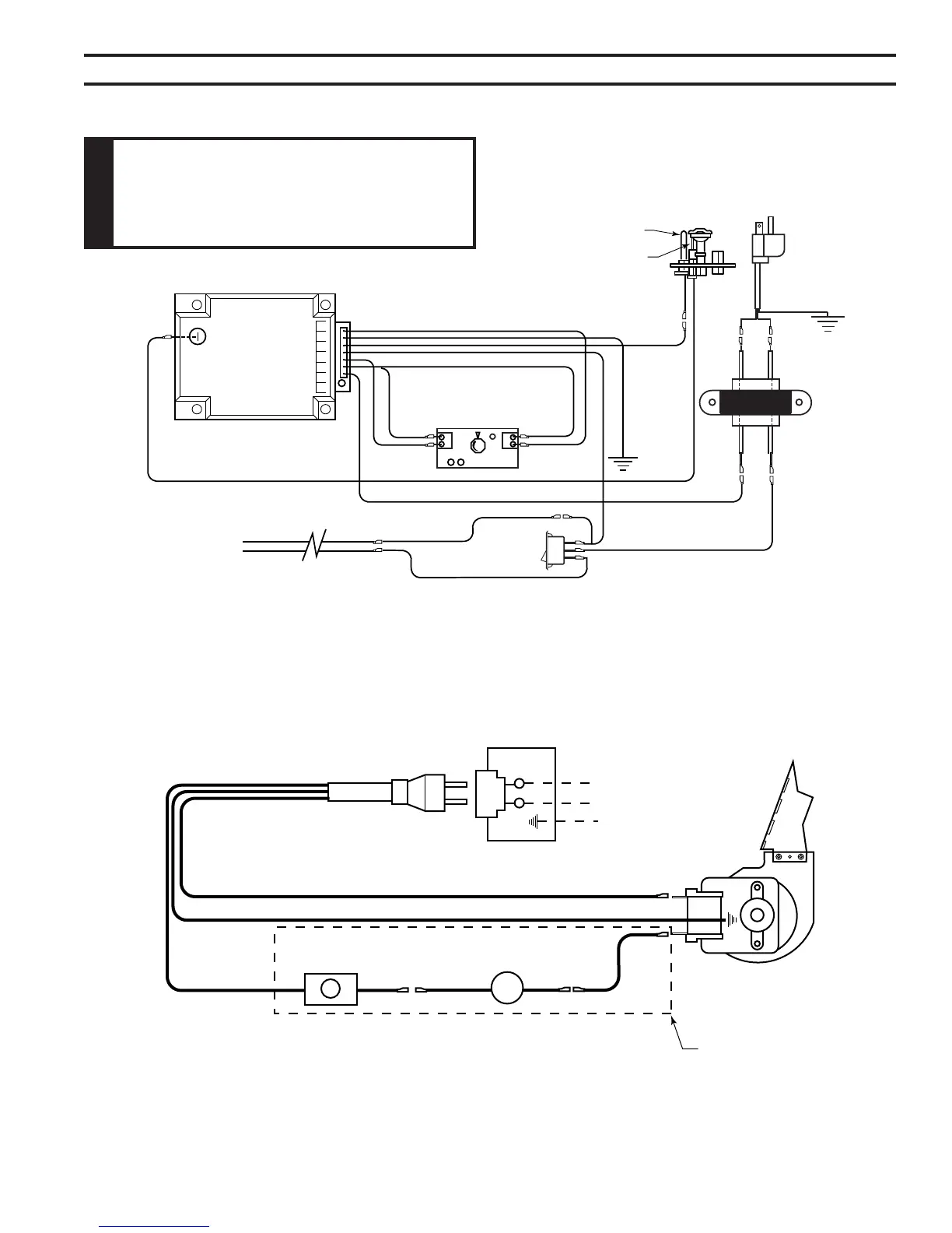
Figure 45 -
Remote Wall Switch Wiring Diagram
#1 #2 #3 #4 #5 #6 7#
Electronic Valve
GRAY #7
RED #2
RED #2
BLACK #4
GREEN #6
BLUE #1
BLUE
YELLOW
YELLOW
WHITE #3
MAGENTA #5
15’ Wall Switch Wire
BLACK
WHITE
Switch
RS
OFF
ON
Transformer
Secondary
24V
WHITE
WHITE
GREEN
BLACK
BLACK
Primary - 120V
To Junction Box
Pilot Assembly
Sense
Ignition Module (Synetek)
Spark
FP2295
electronic wiring diagram
HI
LO
EV1 EV2

 
     


The junction box for the fan/blower systems has been factory installed. This system requires that 110-
10 VAC to be wired to the factory installed junction box before the fireplace is permanently installed.
Figure 46
Black
Black
Green
Black
Black
White
Thermostatic
Switch
Receptacle
Junction Box
120V AC
FP2296
blower wiring
Speed Control
Thermostatic
Control Blower
FP96
Figure 46 -
Blower Wiring Diagram

Table of Contents

Related product manuals