EasyManua.ls Logo

Motorola GP88s

Motorola GP88s
192 pages
To Next Page IconTo Next Page
To Next Page IconTo Next Page
To Previous Page IconTo Previous Page
To Previous Page IconTo Previous Page
Loading...
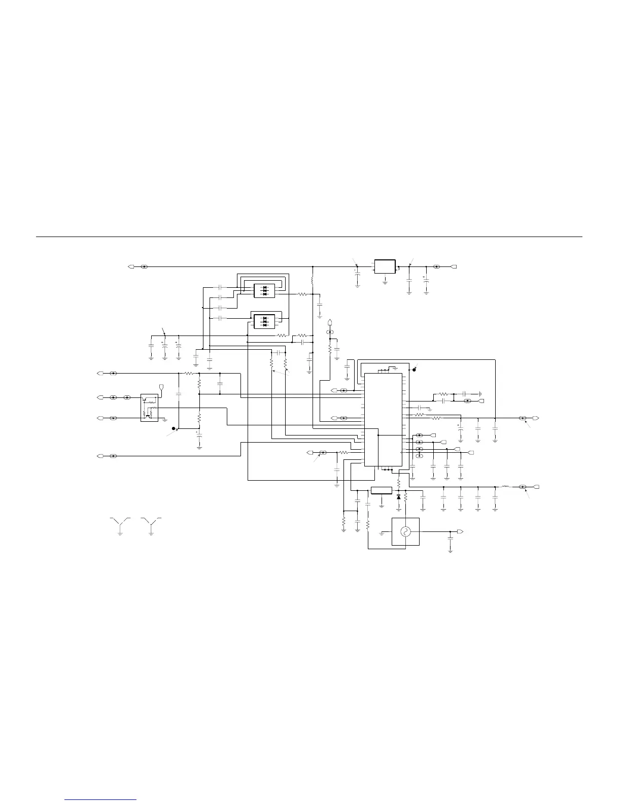
Circuit Board/Schematic Diagrams and Parts List
9B
-41
WARP
XTAL1
XTAL2
TEST1
TEST2
VMULT1
VMULT2
VMULT3
VMULT4
SFOUT
MODOUT
FREFOUT
IADAPT
INDMULT
IOUT
LOCK
AUX3
AUX4
ADAPTSW
AUX1
AUX2
VRO
VCP
PRE_VDD
PD_VDD
DVDD
AVDD
VBPASS
PVREF
REFSEL
SFBASE
SFCAP
SFIN
MODIN
NC1
NC2
NC3
PREIN
DATA
BIAS1
BIAS2
CCOMP
CEX
CLK
PRE_GND
PD_GND
DGND
AGND
33
44
6
22
25
23
24
37
38
15
14
12
11
28
41
19
45
16
43
4
2
3
46
48
1
13
47
34
5
36
20
21
35
18
27
26
30
10
17
29
31
32
7
40
39
42
9
8
U3701
63A27
TRB_1_FN
LOCK
TRB
LOCK_1_FN
220pF
C3746
BIAS_ADJ_1_FN
BIAS_ADJ
NU
NU
C3725
R3726
100
R3701
2.2uF
C3710
390nH
L3701
0.1uF
C3709
R3703
150
C3707
22pF
NU
R3702
C3708
0.1uF
33K
K1
1
K2
2
K3
3
R3705
D3702
A1
6
A2
5
A3
4
R3704
150
A2
5
A3
4
1
K1
2
K2
3
K3
D3701
A1
6
C3703
.01uF
C3704
.01uF
.01uF
C3701
.01uF
C3702
0.1uF
C3705
C3706
4.7uF
470
R3721
100pF
C3716
100pF
C3715
4.7uF
C3714
1uF
C3724
R3723
100
TP3701
1
0.1uF
C3722
1K
R3722
0.1uF
C3721
4
1
3
Q3721
2
UMC5N
R5
5V
T5_1_FN
R5_2_FN
VCTRL_1_FN
R5_1_FN
T5
VCTRL
4.7K
47K
47K
10K
5V_1_FN
5V (SOURCE)
10uF
C3711
2
NR
4
OUT
3
SD
6
ERR
1
GND
5
IN
ADP3300
U3711
SWB_PLUS_1_FN
2.2uF
C3713
C3712
0.1uF
SWB+
VCO_MOD_1_FN
VCO_MOD
11
SH3702
SHIELD
SH3701
SHIELD
16_8MHz_1_FN
16.8MHz
100
R3741
NU
C3741
330pF
C3762
R3762
NU
C3735
NU
R3763
NU
56pF
C3761
GND
3
IN
1
OUT
2
16.8MHz
45J49
Y3761
D3761
R3761
47K
NU
R3760
.01uF
C3731
C3763
2
FADJ
4
GND
3
OUT
1
VDD
1.6pF
NU
OSC_16.8MHZ
16.8MHz
Y3762
C3751
NU
5V
C3733
2.2uF
2.2uH
L3731
C3734
.01uF
.01uF
C3732
Vdda
Vdda_1_FN
220pF
220pF
C3745C3742
220pF
C3744
C3743
220pF
CSX_1_FN
DATA_1_FN
MODIN_1_FN
CLK_1_FN
CLK
MODIN
DATA
CSX
C3753
C3752
4.7uF
1000pF
0.1uF
C3754
VSF_1_FN
VSF
PRESC_1_FN
8.2pF
C3726
PRESC
2.2uF
C3755
200K
R3751
R3752
330K
R3727
100K
100pF
C3727
TP3702
1
13.2V
R: 5V
T: 0V
R: 0V
T: 5V
3.5 - 9.5V
@135-174MHz
RF mV RMS measured with high impedance probe.
3Vpp
@1.05MHz
5V 7.5V
2.5V - 3.5V
120mV RMS
400mV RMS
4.55V
3.3V
ZMY0130322-D
VHF Synthesizer Schematic Diagram

Table of Contents

Related product manuals