EasyManua.ls Logo

MPE SC2000 - Panel Cutout

MPE SC2000
46 pages
Print Icon
To Previous Page IconTo Previous Page
To Previous Page IconTo Previous Page
Loading...
45
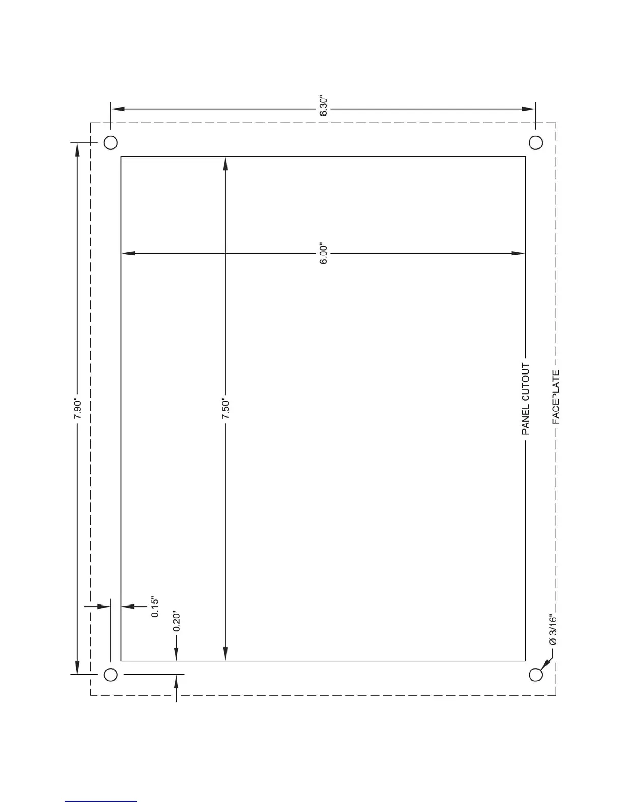
PANEL CUTOUT
Not Printed to Scale. Do Not Use as a Template.