EasyManua.ls Logo

MTE Sine Wave Filter - Open Panel Customer Connections

MTE Sine Wave Filter
44 pages
Print Icon
To Next Page IconTo Next Page
To Next Page IconTo Next Page
To Previous Page IconTo Previous Page
To Previous Page IconTo Previous Page
Loading...
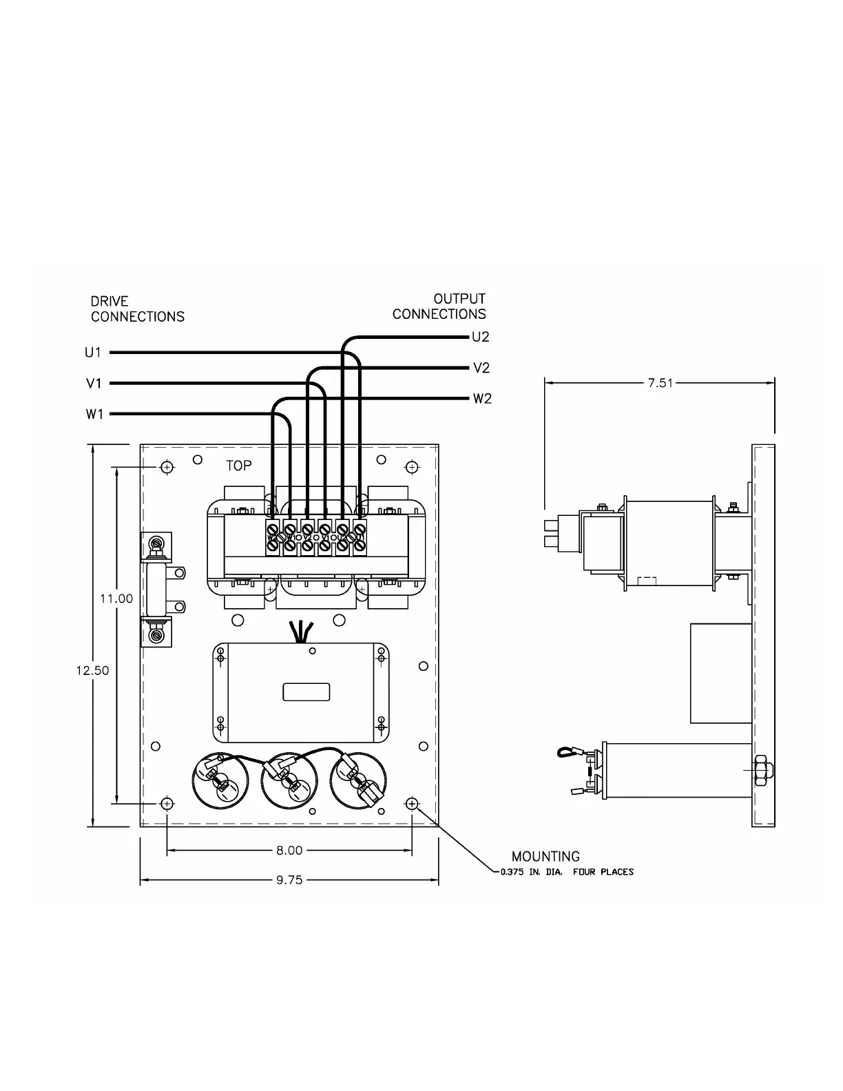
Sine Wave 2-8 kHz Series A Filter
12 Part No. INSTR-020 REL. 080310
Open Panel Customer connections
Open Panel:
3 – 30 Amps 200 - 230 VAC
9 - 17 AMPS 380 - 480 VAC
9 - 12 AMPS 550 - 600 VAC
Fig. 3
17 Amp Shown

Related product manuals