EasyManua.ls Logo

MTE Sine Wave Filter - 350 H Pmcc Using Optional Bay for Sine Wave Installation

MTE Sine Wave Filter
44 pages
Print Icon
To Next Page IconTo Next Page
To Next Page IconTo Next Page
To Previous Page IconTo Previous Page
To Previous Page IconTo Previous Page
Loading...
Sine Wave 2-8 kHz Series A Filter
20 Part No. INSTR-020 REL. 080310
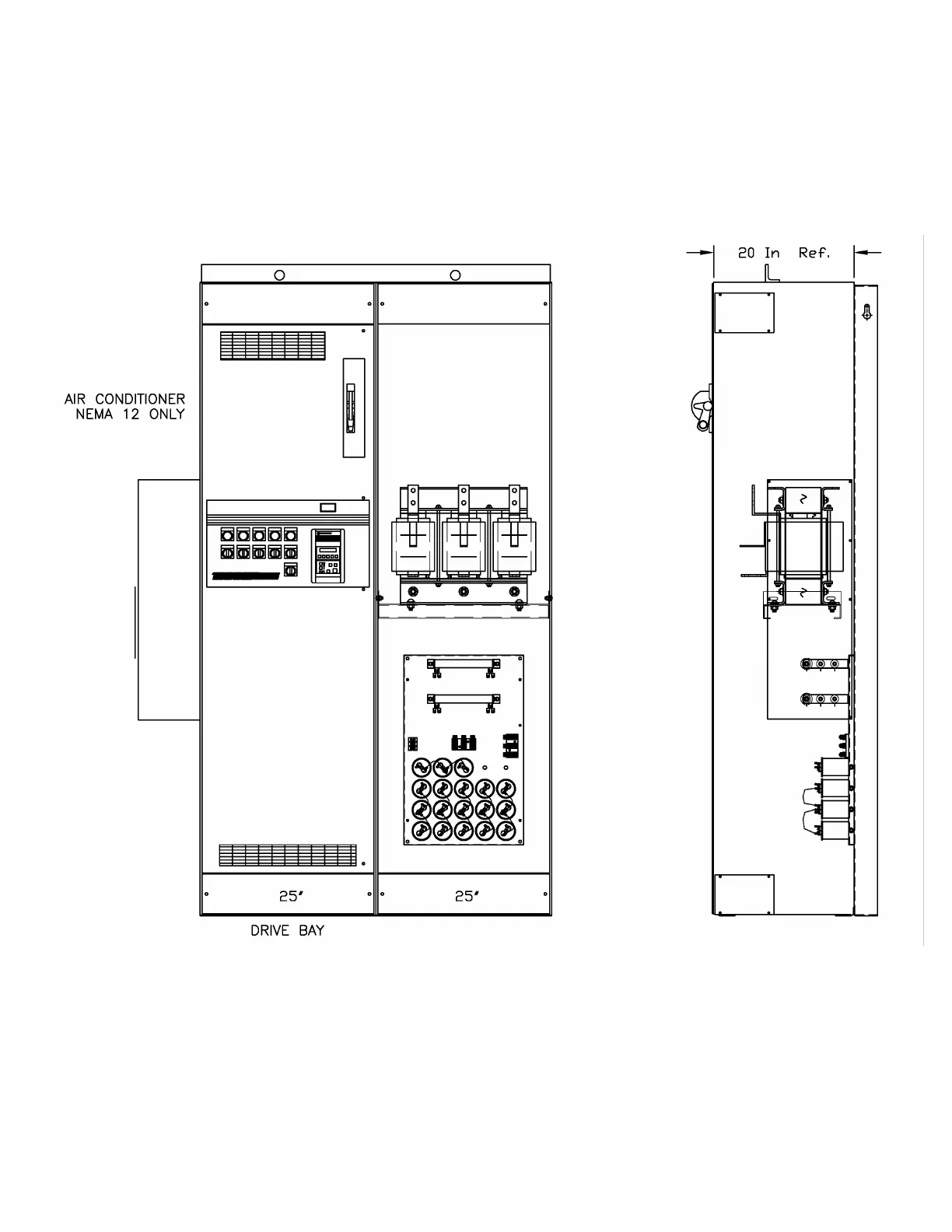
350Hp MCC using optional bay for Sine Wave installation
Fig. 7
Note: The above Sine Wave filter example is shown with customer provided
support hardware. Other installation variations are at the customer’s discretion
as long as thermal guidelines are followed.

Related product manuals