EasyManua.ls Logo

MTZ 952 - Page 234

Default Icon
269 pages
Print Icon
To Next Page IconTo Next Page
To Next Page IconTo Next Page
To Previous Page IconTo Previous Page
To Previous Page IconTo Previous Page
Loading...
Appendix
MTZ series 900
234
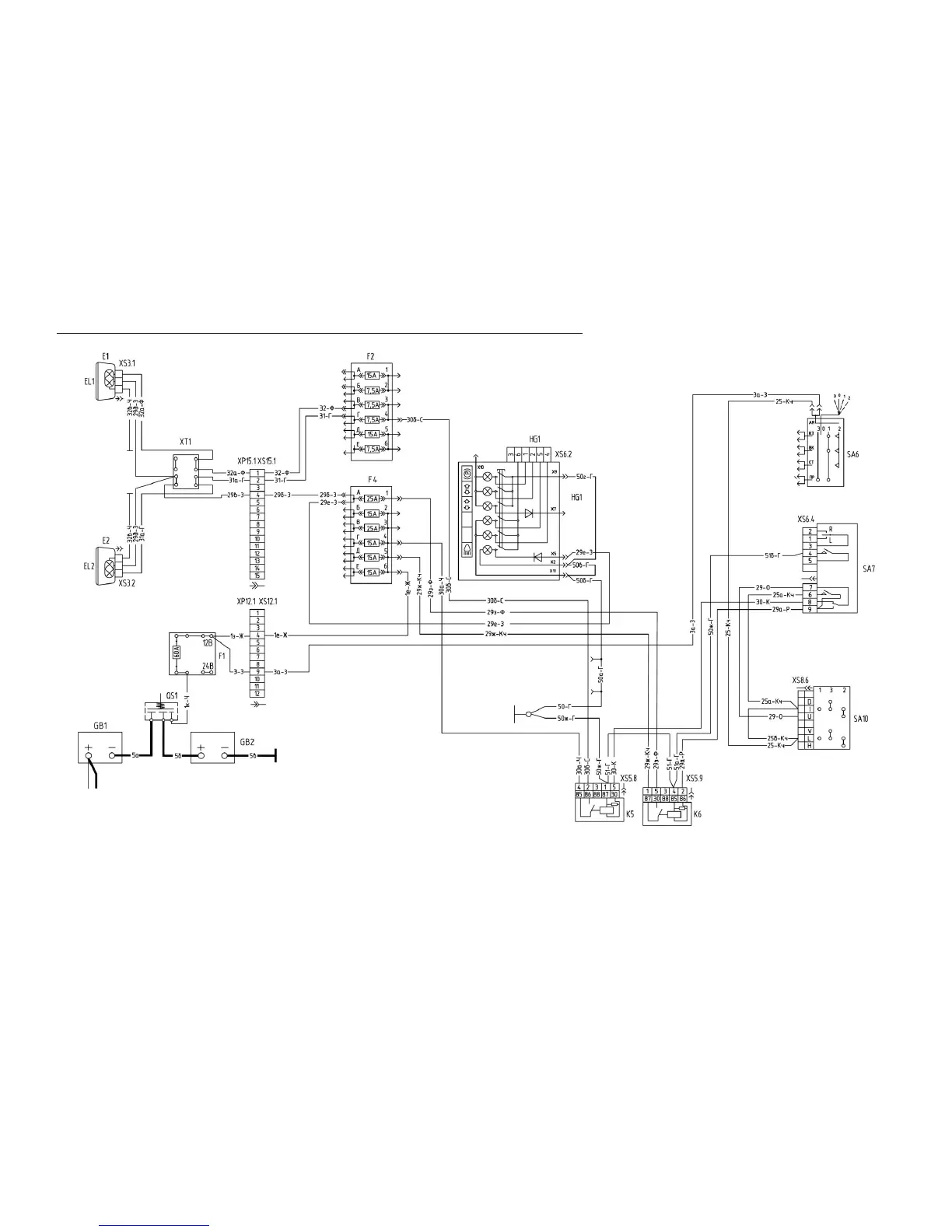
Connection diagram of the road headlights
LOWER BEAM
RELAY
UPPER BEAM
RELAY

Other manuals for MTZ 952

Related product manuals