EasyManua.ls Logo

MTZ 952 - Page 239

Default Icon
269 pages
Print Icon
To Next Page IconTo Next Page
To Next Page IconTo Next Page
To Previous Page IconTo Previous Page
To Previous Page IconTo Previous Page
Loading...
Appendix
MTZ series 900
239
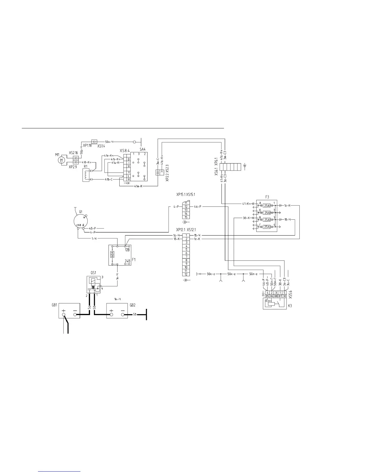
Connection diagram of the cab heater and fan with the fan motor power of 90 W
HEATER INTERLOCK
RELAY

Other manuals for MTZ 952

Related product manuals