EasyManua.ls Logo

MTZ 952 - Page 241

Default Icon
269 pages
Print Icon
To Next Page IconTo Next Page
To Next Page IconTo Next Page
To Previous Page IconTo Previous Page
To Previous Page IconTo Previous Page
Loading...
Appendix
MTZ series 900
241
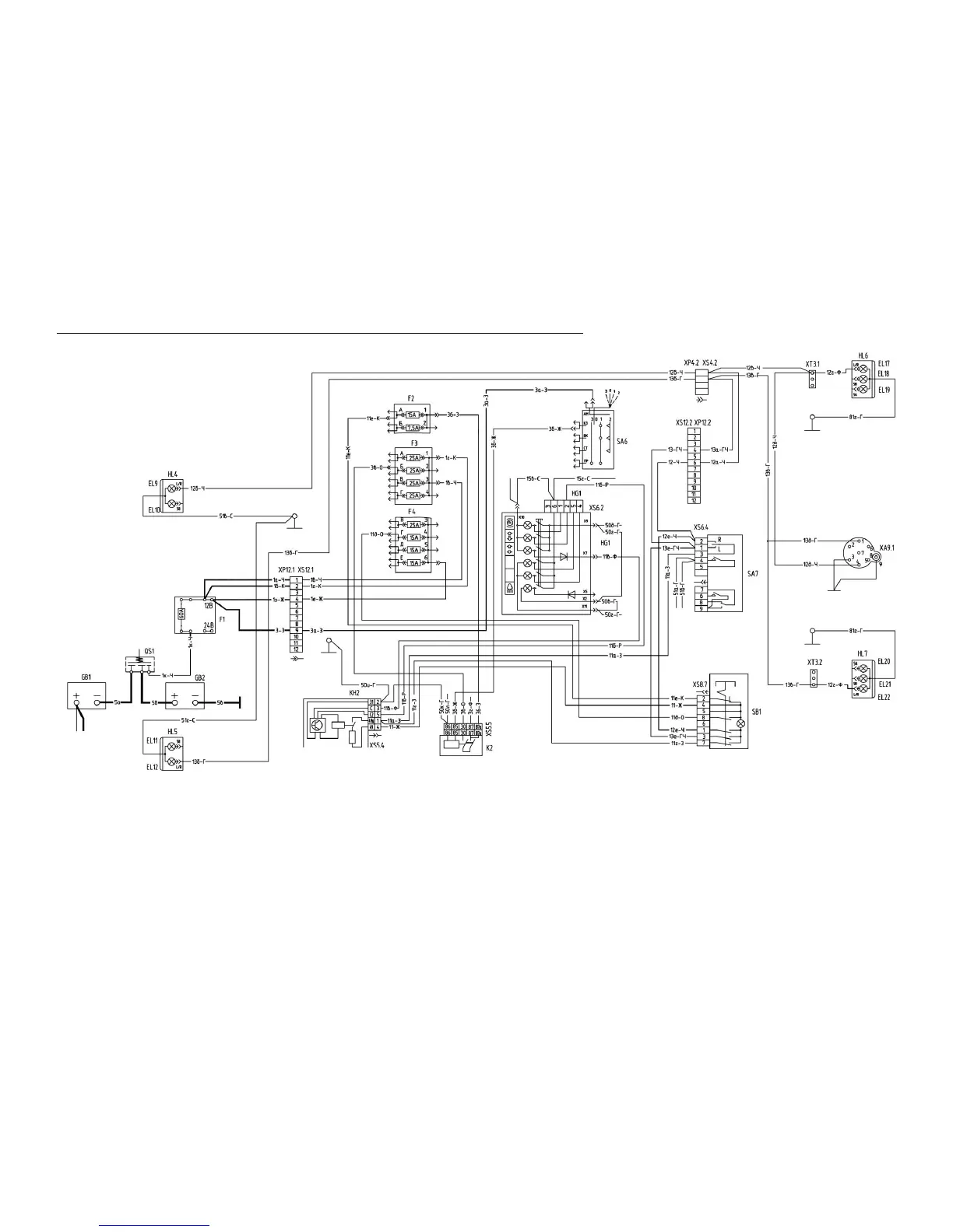
Diagram of the turn indicators and fault signalling
TURN INDICATORS
FLASHER
POWER SUPPLY
RELAY

Other manuals for MTZ 952

Related product manuals