EasyManua.ls Logo

Munters WM54 - 10 Winterizing; Winter Weather Protection

Munters WM54
40 pages
Print Icon
To Next Page IconTo Next Page
To Next Page IconTo Next Page
To Previous Page IconTo Previous Page
To Previous Page IconTo Previous Page
Loading...
37 | © Munters AB, 2019
10. WINTERIZING
10.1 Winterizing
In most climates, it is probable that the ventilation system will never need to operate at a total capacity during the colder
winter months. Consequently, it is advisable to “winterize” those fans which will not be used in cold weather to avoid
unnecessary heat loss and condensation.
To winterize, turn fan control “off”. Install the insulated closure panel over the fan intake. If you don’t have an insulated
closure panel, a piece of rigid insulation material can be used. Remember the insulation panel must be removed before
warmer weather returns.
NOTE
At least one single speed fan should be left uncovered and with power available to provide air movement
in the event of variable speed control difficulties.
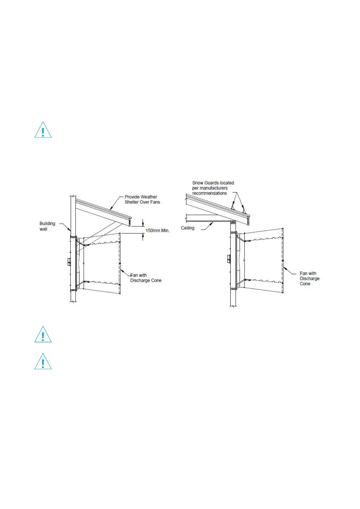
10.2 Winter Weather Protection
To prevent cone or fan damage from snow or ice sliding off building roof, weather protection must be provided. A weather
shelter may be constructed to cover the entire fan, See Figure 30A, or snow guards may be placed on the roof, See Figure
30B.
Figure 30A Figure 30B
WARNING
Munters Product and System Warranties do not cover cone or fan damage from external sources.
NOTE
Snow guards are designed to prevent sudden, dangerous snow and ice slides when attached to the
building roof according to manufacturers recommendations. The supplier listing above is given as a reference
only. Munters does not endorse any specific snow guard product and no performance warranty is implied.

Related product manuals