EasyManua.ls Logo

Napoleon GD36PTR - 3.2 TYPICAL VENT INSTALLATION

Napoleon GD36PTR
62 pages
Print Icon
To Next Page IconTo Next Page
To Next Page IconTo Next Page
To Previous Page IconTo Previous Page
To Previous Page IconTo Previous Page
Loading...
11
W415-0773 / E / 03.13.12
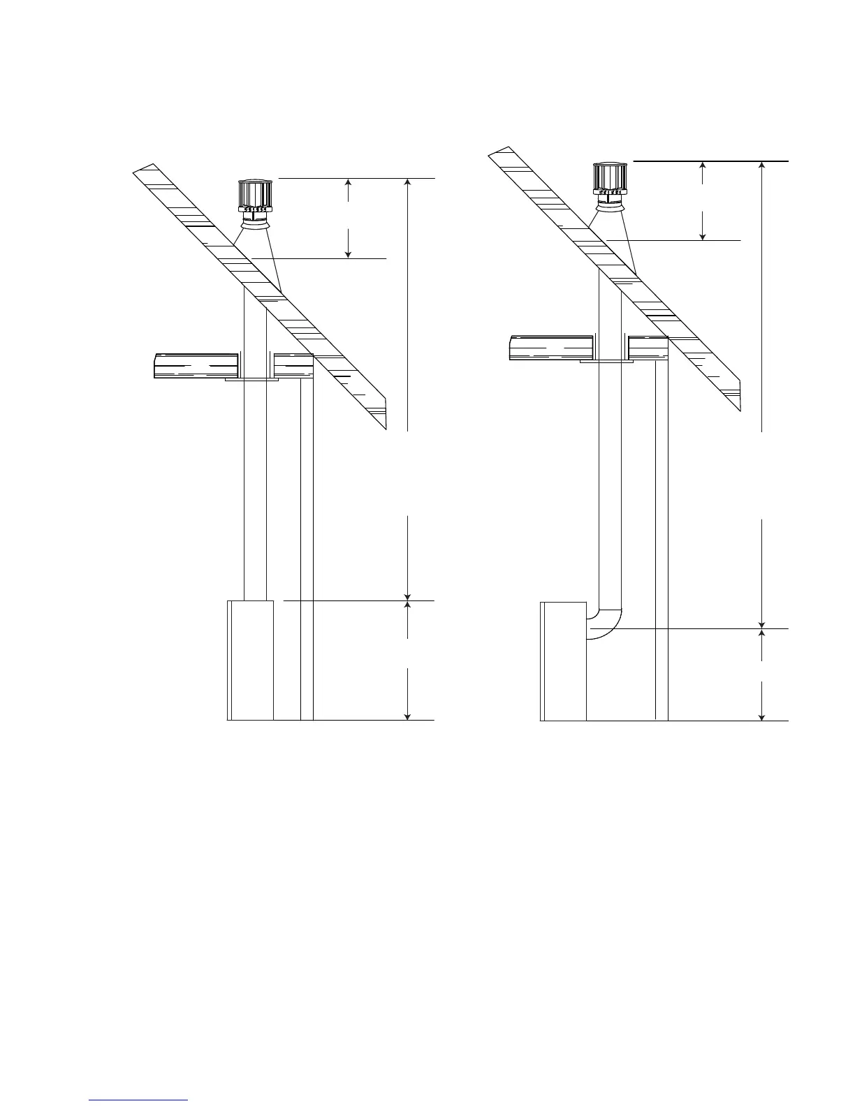
3.2 TYPICAL VENT INSTALLATION
16" MINIMUM
16" MINIMUM
40 FT
MAXIMUM
3 FT
MINIMUM
40 FT
MAXIMUM
3 FT
MINIMUM
TOP VENT
REAR VENT
24 1/4" MIN
33"

Table of Contents

Other manuals for Napoleon GD36PTR

Related product manuals